Продам ГАБ с федеральным арендатором окупаемость 8 лет

Казань, ул Меридианная, д. 19

55 000 000 руб.

?

$ 1 086

€ 979

137 226 руб./м²


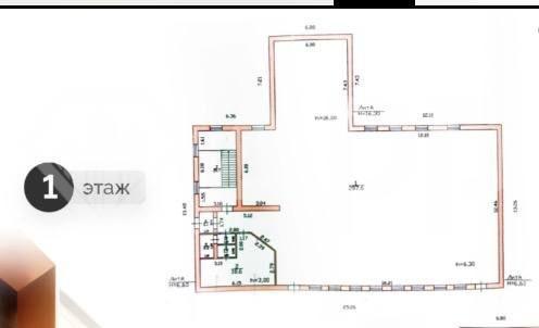
400.8 м²

1/1 этажей

Код объекта

122634

Предложение доступно для субагентов, авторизуйтесь

Продам ГАБ с федеральным арендатором окупаемость 8 лет

Код объекта: 122634.
Тип объекта: Готовый арендный бизнес.
Площадь: 400.8 м².
Этаж / Этажность: 1 / 1.
Месячный арендный поток (МАП): 370000 руб.
Окупаемость: 12.4 лет
Доходность: 8.1 %

Описание и характеристики

Стоимость объекта: 55 000 000 руб.
Месячный арендный поток (МАП): 370 000 руб.
Окупаемость: 12.4 лет
Доходность: 8.1 %
Индексация: 5 %
Окупаемость (с индексацией): 9.9 лет
Доходность (с индексацией): 10.1 %
Потенциальный МАП: 400 000 руб.
Арендатор: федеральная сеть
Готовы арендный бизнес с короткой окупамостью.
Договор аренды с федеральным арендатором на подписании.

В работе документы на реконструкцию и расширение участка, предварительно все одобрено. Есть реальная официальная возможность возведения второго этажа  - на выходе получаете еще плюс 200 м2 помещение.

Характеристики:
- 2 линия
- Отдельная входная группа
- Своя парковка
- Есть возможность разместить вывеску
- Погрузка/разгрузка: Главный вход, Запасной вход, Отдельное окно
- Доступ 24/7
- ХВС/ГВС
- Свой санузел
- Максимальная мощность 100 кВт
- Требует ремонта
- Отдельно стоящее здание
- Имеется запасной выход
- Без лифта
- Высота потолков 6.9 м
- С окнами
- Возможность перепланировки

Дополнительная информация:
Помещение расположено в Ново-савиновском районе на пересечении
оживленных улиц Четаева и Мусина.
Объект имеет отличную транспортную доступность и оптимальное
количество парковочных мест.
В шаговой доступности кафе и магазины, скверы, ТРЦ "Парк Хаус", аптеки,
отделения банка, пункты выдачи курьерских служб, школа и детский сад.

Звоните, обсудим условия, договоримся.
АРР0

По всем вопросам можете обращаться к представителю собственника: Рамис (223)

Перейти в карточку объекта в CRM: 122634.

Миляуша

+7 927 044-09-47

или оставьте ваш номер, и я перезвоню в течение 30 минут

Отправляя заявку вы соглашаетесь на обработку персональных данных

55 000 000 руб.

?

$ 676 023

€ 582 723

137 226 руб./м²


400.8 м²

1/1 этажей

Код объекта

122634

Предложение доступно для субагентов, авторизуйтесь

Миляуша

+7 927 044-09-47

или оставьте ваш номер, и я перезвоню в течение 30 минут

Отправляя заявку вы соглашаетесь на обработку персональных данных

Похожие объявления

Посмотреть все похожие объявления
1/5
Код объекта: 256142.
Тип объекта: Готовый арендный бизнес.
Площадь: 126 м².
Этаж / Этажность: 1 / 1.
1/1
Код объекта: 260146.
Тип объекта: Готовый арендный бизнес.
Площадь: 210 м².
Этаж / Этажность: 1 / 20.
1/3
Код объекта: 275782.
Тип объекта: Готовый арендный бизнес.
Площадь: 66.3 м².
Этаж / Этажность: 1 / 5.
1/8
Код объекта: 250154.
Тип объекта: Готовый арендный бизнес.
Площадь: 530 м².
Этаж / Этажность: 1 / 2.
1/8
Код объекта: 221651.
Тип объекта: Готовый арендный бизнес.
Площадь: 781.2 м².
Этаж / Этажность: 2 / 28.
1/13
Код объекта: 276220.
Тип объекта: Готовый арендный бизнес.
Площадь: 430.6 м².
Этаж / Этажность: 1 / 5.
1/8
Код объекта: 253367.
Тип объекта: Готовый арендный бизнес.
Площадь: 387 м².
Этаж / Этажность: -1 / 3.
1/15
Код объекта: 306597.
Тип объекта: Готовый арендный бизнес.
Площадь: 448 м².
Этаж / Этажность: 1 / 5.
1/10
Код объекта: 306629.
Тип объекта: Готовый арендный бизнес.
Площадь: 496 м².
Этаж / Этажность: 1 / 2.
1/18
Код объекта: 314262.
Тип объекта: Готовый арендный бизнес.
Площадь: 330 м².
Этаж / Этажность: 1 / 1.
1/9
Код объекта: 20247.
Тип объекта: Торговое помещение.
Площадь: 110 м².
Этаж / Этажность: 1 / 1.
1/1
Код объекта: 326105.
Тип объекта: .

Не хочу искать, перезвоните мне!

Оставьте номер телефона, наш специалист свяжется с вами и поможет с подбором недвижимости!