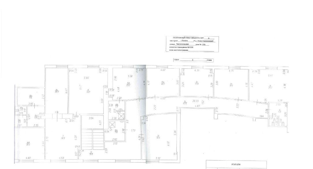
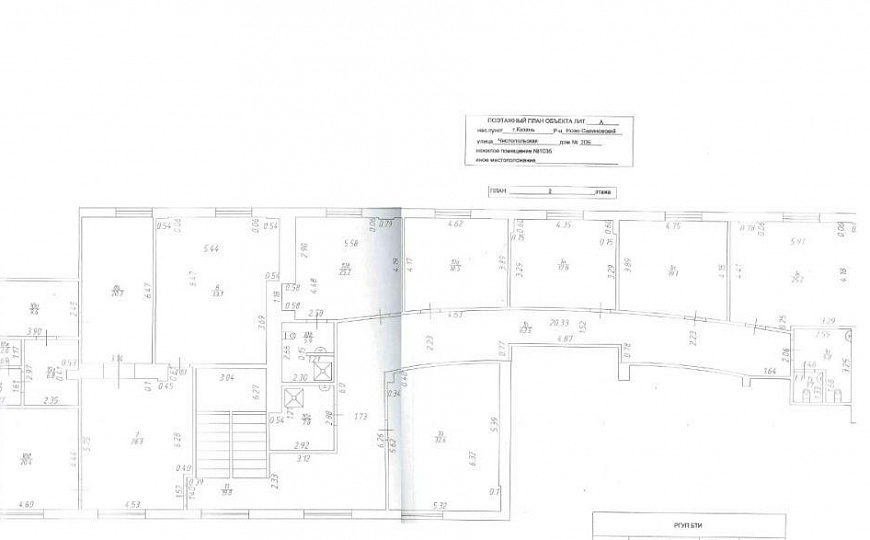
Продается помещение с арендатором 390.2м²

Казань, ул Чистопольская, д. 20Б

97 550 000 руб.

?

$ 1 086

€ 979

250 000 руб./м²


390.2 м²

1/6 этажей

Код объекта

105090

Предложение доступно для субагентов, авторизуйтесь

Продается помещение с арендатором 390.2м²

Код объекта: 105090.
Тип объекта: Продажа бизнеса.
Площадь: 390.2 м².
Этаж / Этажность: 1 / 6.
Назначения: Арендный бизнес.

Описание и характеристики

От собственника! Без комиссии!


Продается помещение с арендатором 390.2м² на ул.Чистопольская, д 20Б
с НДС

- этажность 1/6
- 1 линия
- автом./пешеходный трафик
- рядом остановка общественного транспорта
- удобные подъездные пути
- место под вывеску
- отдельный вход
- большие окна
- хороший обзор
- высота потолков 3м
- качественная отделка
- 2 санузла
- доступ 24/7
- все необходимые коммуникации
- вентиляция
- возможна перепланировка
- ГАБ

По всем вопросам можете обращаться к представителю собственника: Нияз (755), Игорь (214)

Перейти в карточку объекта в CRM: 105090.

Миляуша

+7 927 044-09-47

или оставьте ваш номер, и я перезвоню в течение 30 минут

Отправляя заявку вы соглашаетесь на обработку персональных данных

97 550 000 руб.

?

$ 1 281 972

€ 1 099 740

250 000 руб./м²


390.2 м²

1/6 этажей

Код объекта

105090

Предложение доступно для субагентов, авторизуйтесь

Миляуша

+7 927 044-09-47

или оставьте ваш номер, и я перезвоню в течение 30 минут

Отправляя заявку вы соглашаетесь на обработку персональных данных

Похожие объявления

Посмотреть все похожие объявления
1/29
Код объекта: 287871.
Тип объекта: Продажа бизнеса.
Площадь: 1200 м².
Этаж / Этажность: 1 / 2.
1/21
Код объекта: 269086.
Тип объекта: Продажа бизнеса.
Площадь: 376.1 м².
Этаж / Этажность: 1 / 2.
1/9
Код объекта: 399276.
Тип объекта: Продажа бизнеса.
Площадь: 600 м².
Этаж / Этажность: 1 / 1.
1/18
Код объекта: 373432.
Тип объекта: Продажа бизнеса.
Площадь: 1196.1 м².
Этаж / Этажность: 1 / 1.
1/16
Код объекта: 224463.
Тип объекта: Продажа бизнеса.
Площадь: 190000 .
Этаж / Этажность: 1 / 1.
1/8

46 350 000 руб.

129 109 руб./м²

Код объекта: 305993.
Тип объекта: Продажа бизнеса.
Площадь: 359 м².
Этаж / Этажность: 1 / 1.
1/21
Код объекта: 269086.
Тип объекта: Продажа бизнеса.
Площадь: 376.1 м².
Этаж / Этажность: 1 / 2.
1/2
Код объекта: 334068.
Тип объекта: Продажа бизнеса.
Площадь: 355 м².
Этаж / Этажность: 1 / 23.
1/24
Код объекта: 378263.
Тип объекта: Продажа бизнеса.
Площадь: 500 м².
Этаж / Этажность: 1 / 2.
1/9
Код объекта: 236804.
Тип объекта: Продажа бизнеса.
Площадь: 466.4 м².
Этаж / Этажность: 1 / 1.
1/9
Код объекта: 20247.
Тип объекта: Торговое помещение.
Площадь: 110 м².
Этаж / Этажность: 1 / 1.
1/1
Код объекта: 326105.
Тип объекта: .

Не хочу искать, перезвоните мне!

Оставьте номер телефона, наш специалист свяжется с вами и поможет с подбором недвижимости!