Продам отдельностоящее здание, (ГАБ), 200,4м²

Казань, ул Академика Губкина, д. 4А

44 000 000 руб.

?

$ 1 086

€ 979

219 561 руб./м²


200.4 м²

1/2 этажей

Код объекта

121746

Предложение доступно для субагентов, авторизуйтесь

Продам отдельностоящее здание, (ГАБ), 200,4м²

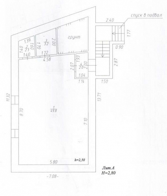
Код объекта: 121746.
Тип объекта: Отдельно стоящее здание.
Площадь: 200.4 м².
Этаж / Этажность: 1 / 2.

Описание и характеристики

Продается здание на Советской площади.
ГАБ в центре Советского района. 3 полноценных этажа с арендаторами.
Высокий пешеходный и автомобильный трафик. Густонаселенный район.
Цена указана за все здание.

Характеристики:
- 1 линия
- Отдельная входная группа
- Общая парковка
- Есть возможность разместить вывеску
- Погрузка/разгрузка: Главный вход, Запасной вход
- Доступ 24/7
- ХВС/ГВС
- Свой санузел
- Индивидуальное отопление
- Естественная вентиляция
- Есть кондиционер
- Максимальная мощность 150 кВт
- Хороший ремонт
- Отдельно стоящее здание
- Имеется запасной выход
- Высота потолков 3 м
- С окнами
- Возможность перепланировки
- Видеонаблюдение
- Коммунальные услуги оплачиваются отдельно

АРР 1

По всем вопросам можете обращаться к представителю собственника: Рамиль (750)

Перейти в карточку объекта в CRM: 121746.

Миляуша

+7 927 044-09-47

или оставьте ваш номер, и я перезвоню в течение 30 минут

Отправляя заявку вы соглашаетесь на обработку персональных данных

44 000 000 руб.

?

$ 578 756

€ 483 649

219 561 руб./м²


200.4 м²

1/2 этажей

Код объекта

121746

Предложение доступно для субагентов, авторизуйтесь

Миляуша

+7 927 044-09-47

или оставьте ваш номер, и я перезвоню в течение 30 минут

Отправляя заявку вы соглашаетесь на обработку персональных данных

Похожие объявления

Посмотреть все похожие объявления
1/10
Код объекта: 221585.
Тип объекта: Отдельно стоящее здание.
Площадь: 344 м².
Этаж / Этажность: 1 / 2.
1/26
Код объекта: 214756.
Тип объекта: Отдельно стоящее здание.
Площадь: 580 м².
Этаж / Этажность: 1 / 1.
1/54
Код объекта: 220688.
Тип объекта: Отдельно стоящее здание.
Площадь: 410 м².
Этаж / Этажность: 1 / 2.
1/14
Код объекта: 279670.
Тип объекта: Отдельно стоящее здание.
Площадь: 800 м².
Этаж / Этажность: 1 / 1.
1/2
Код объекта: 335319.
Тип объекта: Отдельно стоящее здание.
Площадь: 1145.3 м².
Этаж / Этажность: 2 / 2.
1/5
Код объекта: 228587.
Тип объекта: Отдельно стоящее здание.
Площадь: 152 м².
Этаж / Этажность: 1 / 1.
1/13
Код объекта: 255473.
Тип объекта: Отдельно стоящее здание.
Площадь: 151.7 м².
Этаж / Этажность: 1 / 2.
1/6
Код объекта: 253722.
Тип объекта: Отдельно стоящее здание.
Площадь: 206.2 м².
Этаж / Этажность: 1 / 1.
1/21
Код объекта: 307971.
Тип объекта: Отдельно стоящее здание.
Площадь: 225.2 м².
Этаж / Этажность: 1 / 2.
1/8
Код объекта: 344174.
Тип объекта: Отдельно стоящее здание.
Площадь: 220 м².
Этаж / Этажность: 1 / 2.
1/9
Код объекта: 20247.
Тип объекта: Торговое помещение.
Площадь: 110 м².
Этаж / Этажность: 1 / 1.
1/1
Код объекта: 326105.
Тип объекта: .

Не хочу искать, перезвоните мне!

Оставьте номер телефона, наш специалист свяжется с вами и поможет с подбором недвижимости!