Гостиница, 1 072 м²

Самара, ул Пролетная, д. 16

75 000 000 руб.

?

$ 1 086

€ 979

69 963 руб./м²


1072 м²

1/3 этажей

Код объекта

126496

Предложение доступно для субагентов, авторизуйтесь

Гостиница, 1 072 м²

Код объекта: 126496.
Тип объекта: Гостиница.
Площадь: 1072 м².
Этаж / Этажность: 1 / 3.

Описание и характеристики

Характеристики:
- 1 линия
- Отдельная входная группа
- Своя парковка
- Есть возможность разместить вывеску
- Погрузка/разгрузка: Главный вход, Запасной вход
- Доступ 24/7
- ХВС/Бойлер
- Свой санузел
- Индивидуальное отопление
- Приточно-вытяжная вентиляция
- Есть кондиционер
- Максимальная мощность 35 кВт
- Хороший ремонт
- Отдельно стоящее здание
- Имеется запасной выход
- Высота потолков 4 м
- С окнами
- Возможность перепланировки
- Видеонаблюдение
- Коммунальные услуги оплачиваются отдельно

Дополнительная информация:
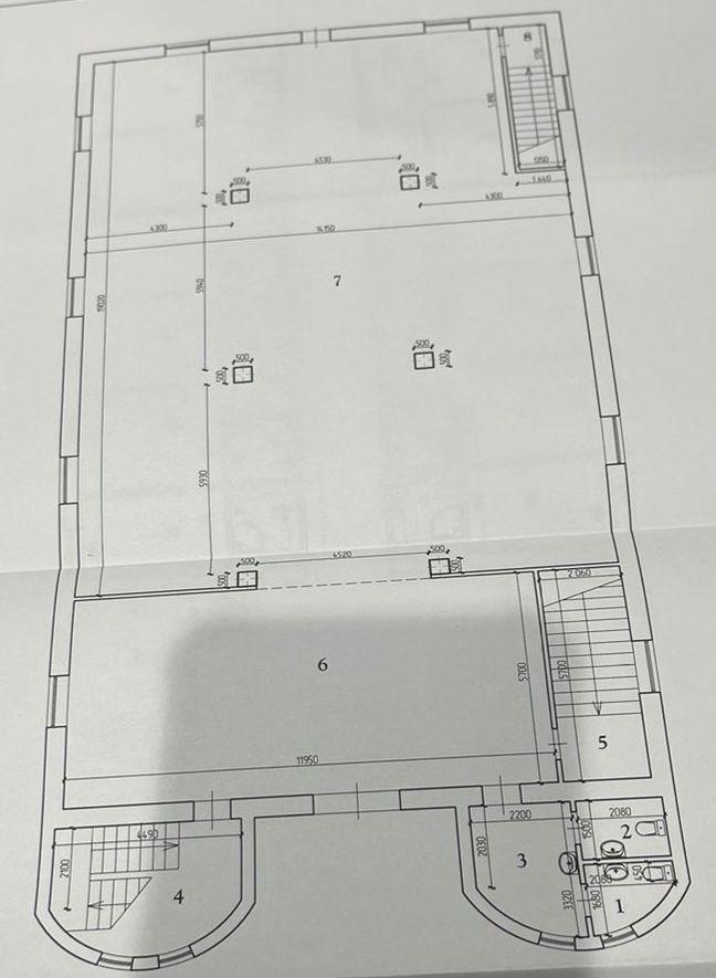
Гостиница на 1 линии улицы Ново-Вокзальная.
1 этаж - ресторан 370 м2
2 этаж - 14 номеров
3 этаж - помещение свободного назначения
Цоколь - помещение 330 м2
Возможность размещения вывески, профессиональная приточно вытяжная вентиляция, возможность перепланировки

Екатерина К.
Помощь с оформлением ипотеки и покупки в лизинг.


Подписывайтесь на наш профиль, чтобы узнавать о новых локациях первыми!

Перейти в карточку объекта в CRM: 126496.

Агентство Регионального Развития

+7 927 019-54-26

или оставьте ваш номер, и я перезвоню в течение 30 минут

Отправляя заявку вы соглашаетесь на обработку персональных данных

75 000 000 руб.

?

$ 968 409

€ 819 874

69 963 руб./м²


1072 м²

1/3 этажей

Код объекта

126496

Предложение доступно для субагентов, авторизуйтесь

Агентство Регионального Развития

+7 927 019-54-26

или оставьте ваш номер, и я перезвоню в течение 30 минут

Отправляя заявку вы соглашаетесь на обработку персональных данных

Похожие объявления

Посмотреть все похожие объявления
1/103
Код объекта: 335368.
Тип объекта: Гостиница.
Площадь: 700 м².
Этаж / Этажность: 1 / 2.
1/23
Код объекта: 338483.
Тип объекта: Гостиница.
Площадь: 800 м².
Этаж / Этажность: 2 / 2.
1/12
Код объекта: 227948.
Тип объекта: Гостиница.
Площадь: 804 м².
Этаж / Этажность: 1 / 3.
1/40

90 000 000 руб.

48 335 руб./м²

Код объекта: 286075.
Тип объекта: Гостиница.
Площадь: 1862 м².
Этаж / Этажность: 1 / 5.
1/16
Код объекта: 228218.
Тип объекта: Гостиница.
Площадь: 1300 м².
Этаж / Этажность: 1 / 4.
1/16
Код объекта: 344716.
Тип объекта: Гостиница.
Площадь: 803.5 м².
Этаж / Этажность: 2 / 3.
1/29
Код объекта: 350469.
Тип объекта: Гостиница.
Площадь: 1000 м².
Этаж / Этажность: 2 / 2.
1/25
Код объекта: 234154.
Тип объекта: Гостиница.
Площадь: 1058 м².
Этаж / Этажность: 1 / 6.
1/21
Код объекта: 307992.
Тип объекта: Гостиница.
Площадь: 898.9 м².
Этаж / Этажность: 1 / 2.
1/23
Код объекта: 338483.
Тип объекта: Гостиница.
Площадь: 800 м².
Этаж / Этажность: 2 / 2.
1/9
Код объекта: 20247.
Тип объекта: Торговое помещение.
Площадь: 110 м².
Этаж / Этажность: 1 / 1.
1/1
Код объекта: 326105.
Тип объекта: .

Не хочу искать, перезвоните мне!

Оставьте номер телефона, наш специалист свяжется с вами и поможет с подбором недвижимости!