Готовый арендный бизнес

Саратов, ул Волжская, д. 5/9

10 800 000 руб.

?

$ 1 086

€ 979

177 049 руб./м²


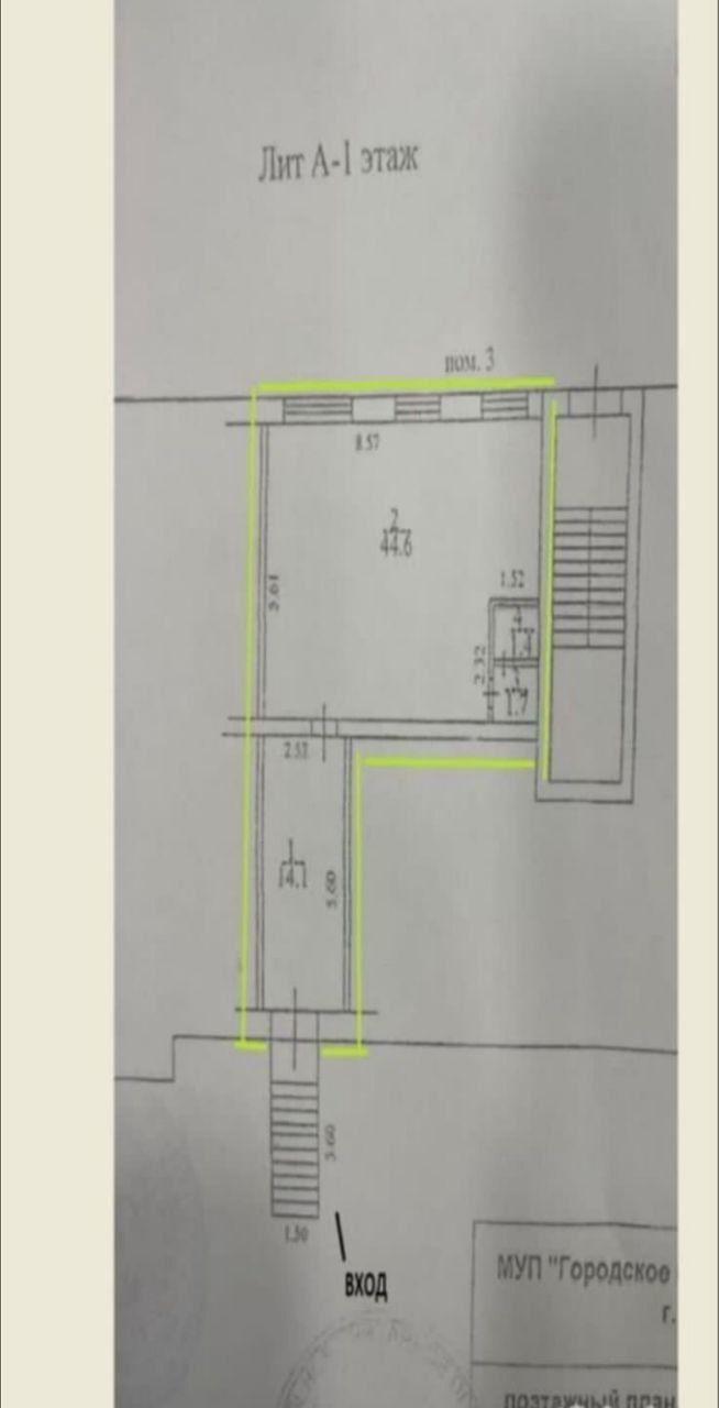
61 м²

1/7 этажей

Код объекта

126059

Предложение доступно для субагентов, авторизуйтесь

Готовый арендный бизнес

Код объекта: 126059.
Тип объекта: Помещение свободного назначения.
Площадь: 61 м².
Этаж / Этажность: 1 / 7.

Описание и характеристики

От собственника! Без комиссии!

Характеристики:
- 1 линия
- Отдельная входная группа
- Общая парковка
- Есть возможность разместить вывеску
- Погрузка/разгрузка: Главный вход
- Доступ 24/7
- ХВС/ГВС
- Свой санузел
- Центральное отопление
- Естественная вентиляция
- Есть кондиционер
- Максимальная мощность 15 кВт
- Хороший ремонт
- Стрит ритейл
- Без лифта
- Высота потолков 2.6 м
- С окнами
- Возможность перепланировки
- Видеонаблюдение
- Коммунальные услуги оплачиваются отдельно

Дополнительная информация:
Вашему вниманию предлагается уникальное предложение, готовый арендный бизнес с сетевым арендатором "Аптека Плюс".
Помещение находится в центре города Саратова на главной пешеходной улице, с огромным трафиком. Что даёт помещению значительные преимущества.
Заключен долгосрочный договор аренды, хорошая индексация, помещение с отличным ремонтом. В собственности более 5 лет, быстрый выход на сделку.

По всем вопросам можете обращаться к представителю собственника: Кирилл Б.

Перейти в карточку объекта в CRM: 126059.

Агентство Регионального Развития

+7 900 312-59-99

или оставьте ваш номер, и я перезвоню в течение 30 минут

Отправляя заявку вы соглашаетесь на обработку персональных данных

10 800 000 руб.

?

$ 130 328

€ 111 179

177 049 руб./м²


61 м²

1/7 этажей

Код объекта

126059

Предложение доступно для субагентов, авторизуйтесь

Агентство Регионального Развития

+7 900 312-59-99

или оставьте ваш номер, и я перезвоню в течение 30 минут

Отправляя заявку вы соглашаетесь на обработку персональных данных

Похожие объявления

Посмотреть все похожие объявления
1/11
Код объекта: 212686.
Тип объекта: Помещение свободного назначения.
Площадь: 115 м².
Этаж / Этажность: -1 / 5.
1/4
Код объекта: 223420.
Тип объекта: Помещение свободного назначения.
Площадь: 284 м².
Этаж / Этажность: -1 / 5.
1/16
Код объекта: 242365.
Тип объекта: Помещение свободного назначения.
Площадь: 85 м².
Этаж / Этажность: 1 / 5.
1/12
Код объекта: 205679.
Тип объекта: Помещение свободного назначения.
Площадь: 170 м².
Этаж / Этажность: 1 / 1.
1/7
Код объекта: 224693.
Тип объекта: Помещение свободного назначения.
Площадь: 448.6 м².
Этаж / Этажность: 1 / 5.
1/17
Код объекта: 210033.
Тип объекта: Помещение свободного назначения.
Площадь: 47 м².
Этаж / Этажность: -1 / 5.
1/8
Код объекта: 210177.
Тип объекта: Помещение свободного назначения.
Площадь: 50 м².
Этаж / Этажность: -1 / 5.
1/12
Код объекта: 252871.
Тип объекта: Помещение свободного назначения.
Площадь: 55 м².
Этаж / Этажность: 1 / 5.
1/18
Код объекта: 234302.
Тип объекта: Помещение свободного назначения.
Площадь: 71 м².
Этаж / Этажность: 1 / 1.
1/12
Код объекта: 201038.
Тип объекта: Помещение свободного назначения.
Площадь: 45 м².
Этаж / Этажность: 1 / 5.
1/9
Код объекта: 20247.
Тип объекта: Торговое помещение.
Площадь: 110 м².
Этаж / Этажность: 1 / 1.
1/1
Код объекта: 326105.
Тип объекта: .

Не хочу искать, перезвоните мне!

Оставьте номер телефона, наш специалист свяжется с вами и поможет с подбором недвижимости!