Продам ТЦ ,1 527 м²

Электросталь, 140083, Московская обл, г Лыткарино, ул Степана Степанова, стр 8

95 000 000 руб.

?

$ 1 086

€ 979

62 213 руб./м²


1527 м²

2/2 этажей

Код объекта

130610

Предложение доступно для субагентов, авторизуйтесь

Продам ТЦ ,1 527 м²

Код объекта: 130610.
Тип объекта: Торговое помещение.
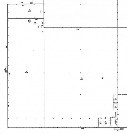
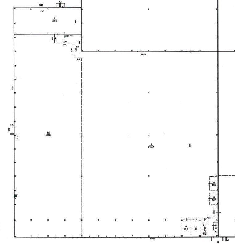
Площадь: 1527 м².
Этаж / Этажность: 2 / 2.

Описание и характеристики

Характеристики:
- 1 линия
- Отдельная входная группа
- Общая парковка
- Есть возможность разместить вывеску
- Погрузка/разгрузка: Главный вход, Запасной вход, Отдельное окно
- Доступ 24/7
- Отдельно стоящее здание
- Имеется запасной выход
- Высота потолков 4 м
- С окнами


Дополнительная информация:

Просторная площадь здания: общая площадь составляет 1527 м², распределённая на три этажа (два надземных и один подземный).
Долгосрочный договор аренды с крупной торговой сетью ("Пятёрочка")
Удобное расположение: рядом находится многофункциональный центр (МФЦ), что повышает проходимость и привлекательность места для бизнеса.
Несколько центральных входов, что улучшает доступность помещения для покупателей и сотрудников.

По всем вопросам можете обращаться к представителю собственника: Дмитрий Тимошенко

Перейти в карточку объекта в CRM: 130610.

Удалов Юрий Алексеевич

+7 925 739-00-37

или оставьте ваш номер, и я перезвоню в течение 30 минут

Отправляя заявку вы соглашаетесь на обработку персональных данных

95 000 000 руб.

?

$ 1 249 121

€ 1 059 965

62 213 руб./м²


1527 м²

2/2 этажей

Код объекта

130610

Предложение доступно для субагентов, авторизуйтесь

Удалов Юрий Алексеевич

+7 925 739-00-37

или оставьте ваш номер, и я перезвоню в течение 30 минут

Отправляя заявку вы соглашаетесь на обработку персональных данных

Похожие объявления

Посмотреть все похожие объявления
1/5
Код объекта: 238718.
Тип объекта: Торговое помещение.
Площадь: 1430 м².
Этаж / Этажность: 1 / 2.
1/4
Код объекта: 248187.
Тип объекта: Торговое помещение.
Площадь: 122 м².
Этаж / Этажность: 1 / 21.
1/8
Код объекта: 256324.
Тип объекта: Торговое помещение.
Площадь: 417 м².
Этаж / Этажность: 1 / 5.
1/18
Код объекта: 250921.
Тип объекта: Торговое помещение.
Площадь: 667 м².
Этаж / Этажность: 1 / 3.
1/13
Код объекта: 299876.
Тип объекта: Торговое помещение.
Площадь: 540 м².
Этаж / Этажность: 1 / 19.
1/5
Код объекта: 238718.
Тип объекта: Торговое помещение.
Площадь: 1430 м².
Этаж / Этажность: 1 / 2.
1/6
Код объекта: 405803.
Тип объекта: Торговое помещение.
Площадь: 1539 м².
Этаж / Этажность: 1 / 2.
1/15
Код объекта: 411881.
Тип объекта: Торговое помещение.
Площадь: 1100 м².
Этаж / Этажность: 1 / 1.
1/26
Код объекта: 419222.
Тип объекта: Торговое помещение.
Площадь: 1509 м².
Этаж / Этажность: 1 / 2.
1/25
Код объекта: 413655.
Тип объекта: Торговое помещение.
Площадь: 1746 м².
Этаж / Этажность: 1 / 1.

Не хочу искать, перезвоните мне!

Оставьте номер телефона, наш специалист свяжется с вами и поможет с подбором недвижимости!