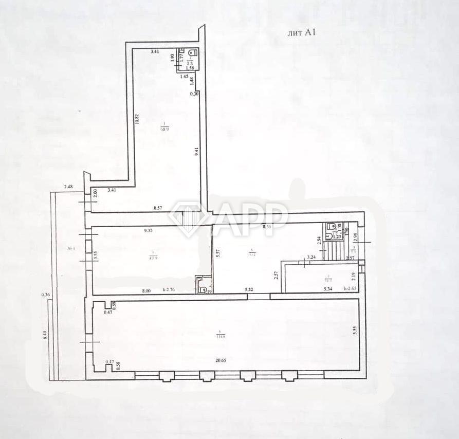
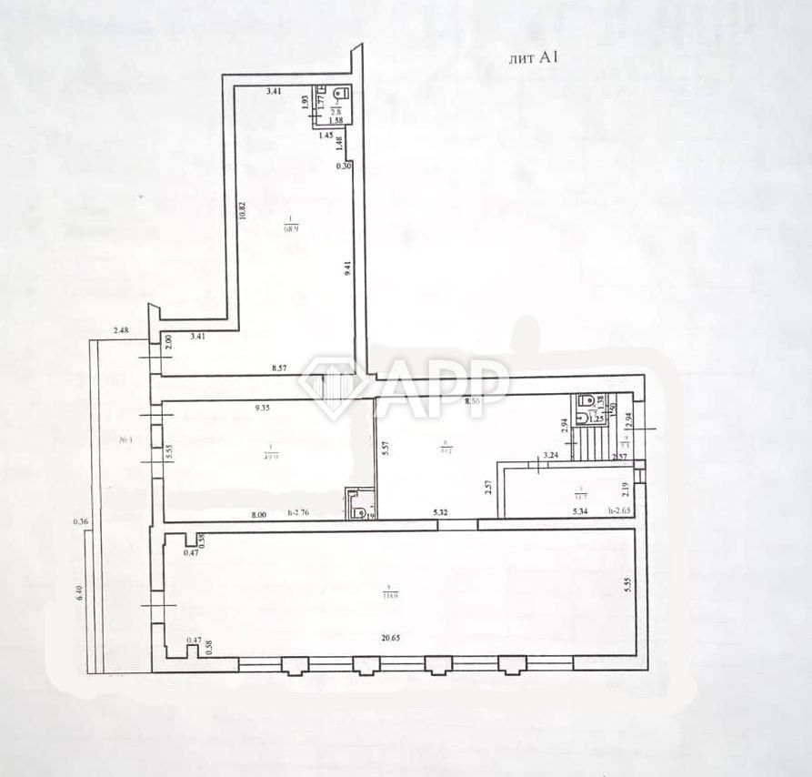
Продам торговое помещение, 500 м²

Новороссийск, ул Куникова, д. 11

75 000 000 руб.

?

$ 1 086

€ 979

150 000 руб./м²


500 м²

1/9 этажей

Код объекта

97353

Предложение доступно для субагентов, авторизуйтесь

Продам Торговое помещение, 500 м²

Код объекта: 97353.
Тип объекта: Торговое помещение.
Площадь: 500 м².
Этаж / Этажность: 1 / 9.

Описание и характеристики

Продам нежилое помещение, арендный бизнес.
От собственника. Без комиссии.
- Высокий пешеходный и транспортный трафик.
- Первая линия, рядом остановка.
- Фасад 21 метр по первой линии.
- Витражное остекление.
- Помещение свободной планировки.
- 1 этаж 306м2 и цоколь 191м2 (потолки 2,65м)
- Все коммуникации городские, место под разгрузку.
- Помещения сданы в аренду.
От собственника. Без комиссии.

По всем вопросам можете обращаться к вашему персональному менеджеру:
Михаил - консультант по коммерческой недвижимости.
"Агентство регионального развития" Коммерческая недвижимость Новороссийска.
Большая база коммерческой недвижимости.
От собственника. Без комиссии.

Перейти в карточку объекта в CRM: 97353.

АРР Новороссийск

+7 988 770-91-00

или оставьте ваш номер, и я перезвоню в течение 30 минут

Отправляя заявку вы соглашаетесь на обработку персональных данных

75 000 000 руб.

?

$ 965 217

€ 830 162

150 000 руб./м²


500 м²

1/9 этажей

Код объекта

97353

Предложение доступно для субагентов, авторизуйтесь

АРР Новороссийск

+7 988 770-91-00

или оставьте ваш номер, и я перезвоню в течение 30 минут

Отправляя заявку вы соглашаетесь на обработку персональных данных

Похожие объявления

Посмотреть все похожие объявления
1/5
Код объекта: 238718.
Тип объекта: Торговое помещение.
Площадь: 1430 м².
Этаж / Этажность: 1 / 2.
1/4
Код объекта: 248187.
Тип объекта: Торговое помещение.
Площадь: 122 м².
Этаж / Этажность: 1 / 21.
1/8
Код объекта: 256324.
Тип объекта: Торговое помещение.
Площадь: 417 м².
Этаж / Этажность: 1 / 5.
1/6
Код объекта: 248186.
Тип объекта: Торговое помещение.
Площадь: 88.15 м².
Этаж / Этажность: 1 / 21.
1/12
Код объекта: 215497.
Тип объекта: Торговое помещение.
Площадь: 380 м².
Этаж / Этажность: 1 / 2.
1/8
Код объекта: 256324.
Тип объекта: Торговое помещение.
Площадь: 417 м².
Этаж / Этажность: 1 / 5.
1/12
Код объекта: 215497.
Тип объекта: Торговое помещение.
Площадь: 380 м².
Этаж / Этажность: 1 / 2.
1/18
Код объекта: 260284.
Тип объекта: Торговое помещение.
Площадь: 560 м².
Этаж / Этажность: 1 / 2.
1/14
Код объекта: 21555.
Тип объекта: Торговое помещение.
Площадь: 415 м².
Этаж / Этажность: 1 / 5.
1/16
Код объекта: 259094.
Тип объекта: Торговое помещение.
Площадь: 554 м².
Этаж / Этажность: 1 / 2.
1/9
Код объекта: 20247.
Тип объекта: Торговое помещение.
Площадь: 110 м².
Этаж / Этажность: 1 / 1.
1/1
Код объекта: 326105.
Тип объекта: .

Не хочу искать, перезвоните мне!

Оставьте номер телефона, наш специалист свяжется с вами и поможет с подбором недвижимости!