Продается земельный участок 50 ар (сотка)

Ижевск, Удмуртская Республика, Завьяловский р-н, д. Старое Мартьяново ул. Лесная , д. 6

4 000 000 руб.

?

$ 1 086

€ 979

800 руб./м²


5000

Код объекта

108457

Предложение доступно для субагентов, авторизуйтесь

Продается Земельный участок 50 ар (сотка)

Код объекта: 108457.
Тип объекта: Земельный участок.
Площадь: 5000 .

Описание и характеристики

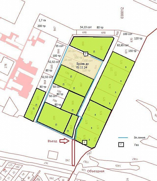
Перспективная земля промышленного назначения ( от 50 соток) в непосредственной близости от Ижевского Аэропорта ( въезд за кафе "Самолёт").
Общая площадь проекта 26 Га, территория огорожена, на въезде КПП.
По промпарку проходят асфальтированные дороги.
Газ подведен к каждому участку - можно подключаться и начинать работать.
Электричество от 150 до 670кВт.
В непосредственной близости - Ижевский Аэропорт ( со скорым введением в эксплуатацию международного терминала), Ижевская кольцевая автодорога - хорошая транспортная доступность, Старые и Новые Мартьяны, Крылатское.
Ходит общественный транспорт.
Стоимость:

От 80 до 110 тыс. руб за сотку - земельные участки с подвешенными к границе коммуникациями ( газ, электричество).
Помощь с исходно разрешительной документацией, получении разрешении на строительство.
Так же возможно предоставление ангаров в аренду - построим под вас и заключим договор на длительный период. Ставка по вашему предложению и в зависимости от объемов строительства.
Всë обсуждаемо!

По всем вопросам можете обращаться к представителю собственника: Невоструев

Перейти в карточку объекта в CRM: 108457.

Миляуша

+7 937 008-56-34

или оставьте ваш номер, и я перезвоню в течение 30 минут

Отправляя заявку вы соглашаетесь на обработку персональных данных

4 000 000 руб.

?

$ 49 400

€ 42 516

800 руб./м²


5000

Код объекта

108457

Предложение доступно для субагентов, авторизуйтесь

Миляуша

+7 937 008-56-34

или оставьте ваш номер, и я перезвоню в течение 30 минут

Отправляя заявку вы соглашаетесь на обработку персональных данных

Похожие объявления

Посмотреть все похожие объявления
1/23
1/2
Код объекта: 274330.
Тип объекта: Земельный участок.
Площадь: 516 м².
1/2
Код объекта: 216145.
Тип объекта: Земельный участок.
Площадь: 57000 м².
1/10
Код объекта: 344125.
Тип объекта: Земельный участок.
Площадь: 1200 .
1/6
Код объекта: 349602.
Тип объекта: Земельный участок.
Площадь: 750 м².
1/9
Код объекта: 219945.
Тип объекта: Земельный участок.
Площадь: 4200 .
1/7
1/6
Код объекта: 224481.
Тип объекта: Земельный участок.
Площадь: 6000 .
1/14
Код объекта: 229208.
Тип объекта: Земельный участок.
Площадь: 4580 м².
1/32
Код объекта: 306721.
Тип объекта: Земельный участок.
Площадь: 3600 .
1/9
Код объекта: 20247.
Тип объекта: Торговое помещение.
Площадь: 110 м².
Этаж / Этажность: 1 / 1.
1/1
Код объекта: 326105.
Тип объекта: .

Не хочу искать, перезвоните мне!

Оставьте номер телефона, наш специалист свяжется с вами и поможет с подбором недвижимости!