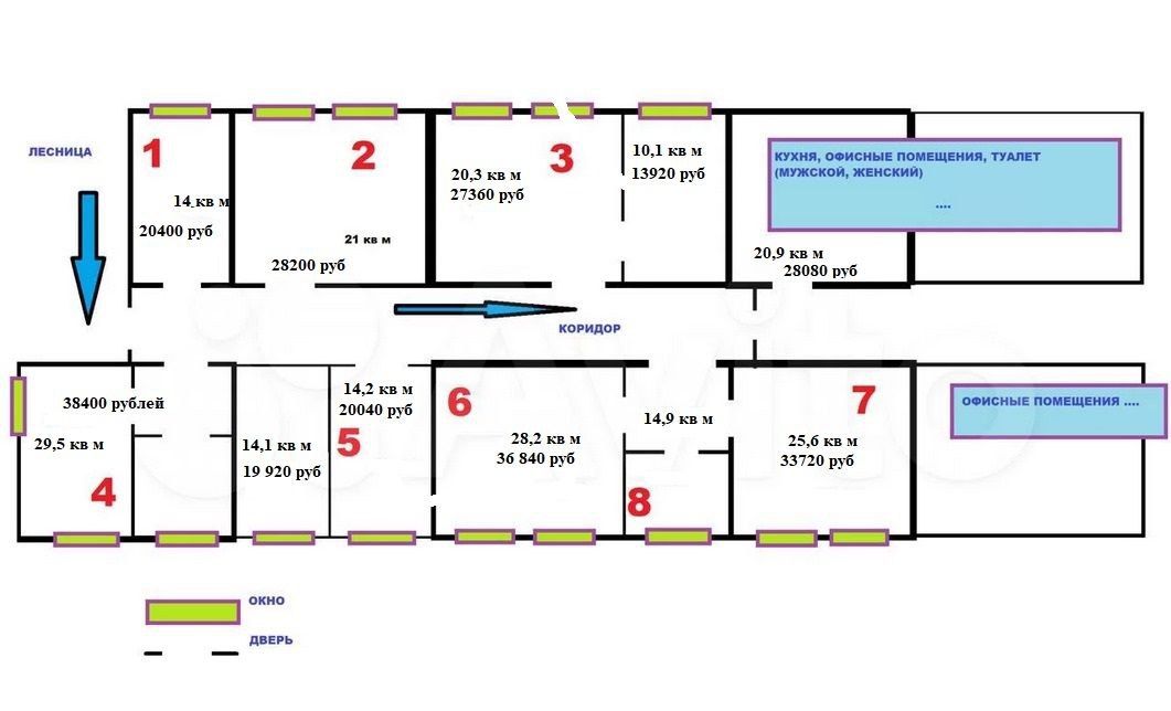
Сдам помещения свободного назначения от 14 до 30 кв.м

Балашиха, Московская обл, г Ногинск, п Рыбхоз, ш Бисеровское, д 3А

20 300 руб.

?

$ 1 086

€ 979

1 450 руб./м²


14 м²

2/2 этажей

Код объекта

117448

Предложение доступно для субагентов, авторизуйтесь

Сдам помещения свободного назначения от 14 до 30 кв.м

Код объекта: 117448.
Тип объекта: Бизнес-центр/офисный центр.
Площадь: 14 м².
Этаж / Этажность: 2 / 2.

Описание и характеристики

От собственника! Без комиссии!

Характеристики:
- 1 линия
- Отдельная входная группа
- Своя парковка
- Доступ 24/7
- ХВС/ГВС
- Общий санузел
- Автономное отопление
- Есть кондиционер
- Хороший ремонт
- Кабинетная планировка
- Офисный центр
- Без лифта
- Высота потолков 3 м
- Видеонаблюдение
- Частично с мебелью
- С окнами
- Инфраструктура: Магазины, Кафе/столовые
- Коммунальные услуги оплачиваются отдельно

Дополнительная информация:
Отличная локация , удобные подъездные пути. Парковка для авто. Рядом автобусная остановка . Ухоженная прилегающая территория. Возможна аренда с офисной мебелью.

По всем вопросам можете обращаться к представителю собственника: Светлана Чехонина

Перейти в карточку объекта в CRM: 117448.

Юрий

+7 925 739-00-37

или оставьте ваш номер, и я перезвоню в течение 30 минут

Отправляя заявку вы соглашаетесь на обработку персональных данных

20 300 руб.

?

$ 251

€ 213

1 450 руб./м²


14 м²

2/2 этажей

Код объекта

117448

Предложение доступно для субагентов, авторизуйтесь

Юрий

+7 925 739-00-37

или оставьте ваш номер, и я перезвоню в течение 30 минут

Отправляя заявку вы соглашаетесь на обработку персональных данных

Похожие объявления

Посмотреть все похожие объявления
1/14
Код объекта: 289976.
Тип объекта: Бизнес-центр/офисный центр.
Площадь: 56.6 м².
Этаж / Этажность: 2 / 3.
1/8
Код объекта: 292684.
Тип объекта: Бизнес-центр/офисный центр.
Площадь: 15 м².
Этаж / Этажность: 2 / 2.
1/12
Код объекта: 296804.
Тип объекта: Бизнес-центр/офисный центр.
Площадь: 15 м².
Этаж / Этажность: 1 / 7.
1/6
Код объекта: 305005.
Тип объекта: Бизнес-центр/офисный центр.
Площадь: 28 м².
Этаж / Этажность: 3 / 5.
1/3
Код объекта: 301183.
Тип объекта: Бизнес-центр/офисный центр.
Площадь: 20 м².
Этаж / Этажность: 3 / 3.
1/8
Код объекта: 292684.
Тип объекта: Бизнес-центр/офисный центр.
Площадь: 15 м².
Этаж / Этажность: 2 / 2.
1/12
Код объекта: 296804.
Тип объекта: Бизнес-центр/офисный центр.
Площадь: 15 м².
Этаж / Этажность: 1 / 7.
1/12
Код объекта: 339404.
Тип объекта: Бизнес-центр/офисный центр.
Площадь: 11 м².
Этаж / Этажность: 3 / 3.
1/8
Код объекта: 291788.
Тип объекта: Бизнес-центр/офисный центр.
Площадь: 15 м².
Этаж / Этажность: 2 / 6.
1/14
Код объекта: 356856.
Тип объекта: Бизнес-центр/офисный центр.
Площадь: 16.5 м².
Этаж / Этажность: 3 / 3.
1/9
Код объекта: 20247.
Тип объекта: Торговое помещение.
Площадь: 110 м².
Этаж / Этажность: 1 / 1.
1/1
Код объекта: 326105.
Тип объекта: .

Не хочу искать, перезвоните мне!

Оставьте номер телефона, наш специалист свяжется с вами и поможет с подбором недвижимости!