Объявление снято с публикации Посмотреть все похожие объявления

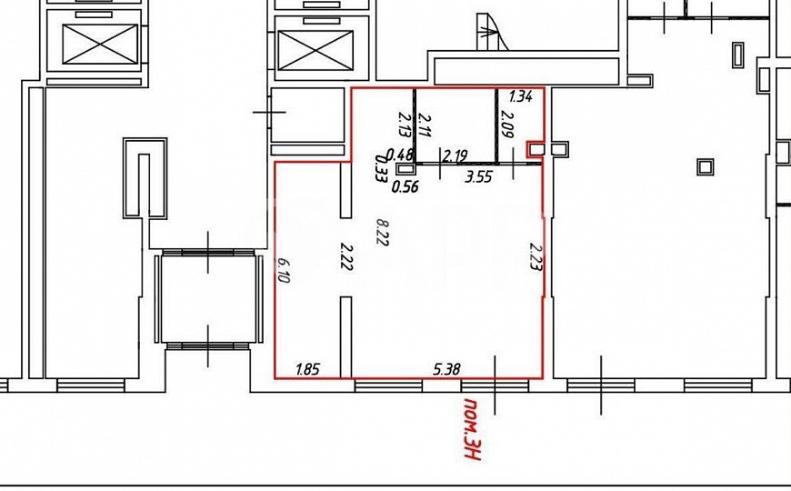
Сдаю помещение 55 м., с вытяжкой

Москва, ш Перовское, д. 2, корп. 2

245 000 руб.

?

$ 1 086

€ 979

4 455 руб./м²


55 м²

1/24 этажей

Код объекта

123277

Предложение доступно для субагентов, авторизуйтесь

Сдаю помещение 55 м., с вытяжкой

Код объекта: 123277.
Тип объекта: Помещение общественного питания.
Площадь: 55 м².
Этаж / Этажность: 1 / 24.

Описание и характеристики

Характеристики:
- 1 линия
- Отдельная входная группа
- Общая парковка
- Есть возможность разместить вывеску
- Погрузка/разгрузка: Главный вход
- Доступ 24/7
- ХВС/ГВС
- Свой санузел
- Центральное отопление
- Вытяжная вентиляция
- Максимальная мощность 11 кВт
- Предчистовой ремонт
- Стрит ритейл
- Высота потолков 4 м
- С окнами
- Возможность перепланировки
- Коммунальные услуги оплачиваются отдельно

Дополнительная информация:
Сдаю перспективное помещение 55 м., под ремонт, с вытяжкой, витринные окна. Выход на тротуар, 1 линия. Новый молодежный ЖК, путь к метро. На долгий срок возможно. Каникулы, вывеска - все присутствует.
АРР1

По всем вопросам можете обращаться к представителю собственника: Андрей П (229)

Перейти в карточку объекта в CRM: 123277.

Наиля

+7 927 030-01-60

или оставьте ваш номер, и я перезвоню в течение 30 минут

Отправляя заявку вы соглашаетесь на обработку персональных данных

245 000 руб.

?

$ 3 424

€ 2 867

4 455 руб./м²


55 м²

1/24 этажей

Код объекта

123277

К сожалению, этот объект уже сдан или продан. Но вы можете посмотреть похожие варианты или воспользоваться бесплатной услугой подбора подходящего помещения (участка). Для этого оставьте телефон в форме ниже

Наиля

+7 927 030-01-60

или оставьте ваш номер, и я перезвоню в течение 30 минут

Отправляя заявку вы соглашаетесь на обработку персональных данных

Объявление снято с публикации

Похожие объявления

Посмотреть все похожие объявления
1/58
Код объекта: 268537.
Тип объекта: Помещение общественного питания.
Площадь: 233 м².
Этаж / Этажность: -1 / 5.
1/25
Код объекта: 334676.
Тип объекта: Помещение общественного питания.
Площадь: 210 м².
Этаж / Этажность: 1 / 5.
1/8
Код объекта: 340155.
Тип объекта: Помещение общественного питания.
Площадь: 311 м².
Этаж / Этажность: 1 / 9.
1/20
Код объекта: 260043.
Тип объекта: Помещение общественного питания.
Площадь: 293.2 м².
Этаж / Этажность: 1 / 4.
1/13
Код объекта: 401477.
Тип объекта: Помещение общественного питания.
Площадь: 210 м².
Этаж / Этажность: 1 / 5.
1/10
Код объекта: 262245.
Тип объекта: Помещение общественного питания.
Площадь: 50 м².
Этаж / Этажность: 2 / 2.
1/10
Код объекта: 419475.
Тип объекта: Помещение общественного питания.
Площадь: 60 м².
Этаж / Этажность: 1 / 1.
1/13
Код объекта: 426372.
Тип объекта: Помещение общественного питания.
Площадь: 50 м².
Этаж / Этажность: 1 / 2.
1/20
Код объекта: 416155.
Тип объекта: Помещение общественного питания.
Площадь: 44 м².
Этаж / Этажность: 1 / 2.
1/9
Код объекта: 428382.
Тип объекта: Помещение общественного питания.
Площадь: 70 м².
Этаж / Этажность: 1 / 2.

Не хочу искать, перезвоните мне!

Оставьте номер телефона, наш специалист свяжется с вами и поможет с подбором недвижимости!