Общепит/ кафе / еда на вынос / центр района

Ростов-на-Дону, ул Воровского, д. 17

100 000 руб.

?

$ 1 086

€ 979

787 руб./м²


127 м²

1/1 этажей

Код объекта

127839

Предложение доступно для субагентов, авторизуйтесь

Общепит/ кафе / еда на вынос / центр района

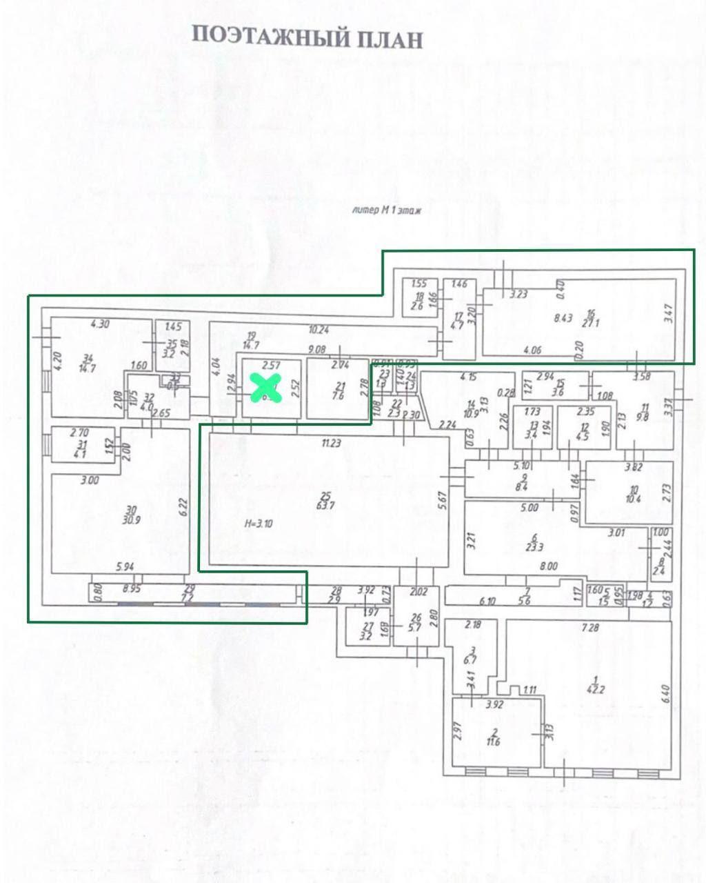
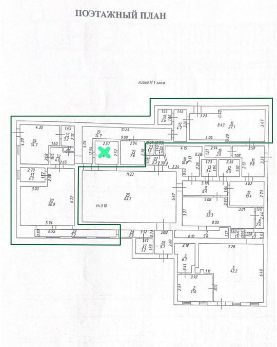
Код объекта: 127839.
Тип объекта: Помещение общественного питания.
Площадь: 127 м².
Этаж / Этажность: 1 / 1.
Назначения: Кафе.

Описание и характеристики

От собственника! Без комиссии!

Характеристики:
- 1 линия
- Отдельная входная группа
- Своя парковка
- Есть возможность разместить вывеску
- Погрузка/разгрузка: Запасной вход
- Доступ 24/7
- ХВС/ГВС
- Свой санузел
- Центральное отопление
- Вытяжная вентиляция
- Максимальная мощность 10 кВт
- Требует ремонта
- Отдельно стоящее здание
- Имеется запасной выход
- Без лифта
- Высота потолков 3 м
- С окнами
- Возможность перепланировки
- Коммунальные услуги оплачиваются отдельно

Дополнительная информация:
Общепит, в центре сельмаша , рядом суд колледжи , находиться прямо под новым заселенным жк, рядом мини рынок , напротив офисные помещения . Проходимая улица к проспекту шолохова . Каникулы на ремонт , вход будет вместо окна , парковка у здания .

По всем вопросам можете обращаться к представителю собственника: Антов Суровцев

Перейти в карточку объекта в CRM: 127839.

Дмитрий

+7 928 166-01-23

или оставьте ваш номер, и я перезвоню в течение 30 минут

Отправляя заявку вы соглашаетесь на обработку персональных данных

100 000 руб.

?

$ 1 303

€ 1 108

787 руб./м²


127 м²

1/1 этажей

Код объекта

127839

Предложение доступно для субагентов, авторизуйтесь

Дмитрий

+7 928 166-01-23

или оставьте ваш номер, и я перезвоню в течение 30 минут

Отправляя заявку вы соглашаетесь на обработку персональных данных

Похожие объявления

Посмотреть все похожие объявления
1/6
Код объекта: 369354.
Тип объекта: Помещение общественного питания.
Площадь: 105.1 м².
Этаж / Этажность: 1 / 9.
1/18
Код объекта: 256939.
Тип объекта: Помещение общественного питания.
Площадь: 186 м².
Этаж / Этажность: 1 / 1.
1/17
Код объекта: 402315.
Тип объекта: Помещение общественного питания.
Площадь: 80.8 м².
Этаж / Этажность: 1 / 25.
1/33
Код объекта: 406454.
Тип объекта: Помещение общественного питания.
Площадь: 84.6 м².
Этаж / Этажность: -1 / 3.
1/10
Код объекта: 262245.
Тип объекта: Помещение общественного питания.
Площадь: 50 м².
Этаж / Этажность: 2 / 2.
1/15
Код объекта: 268111.
Тип объекта: Помещение общественного питания.
Площадь: 117.5 м².
Этаж / Этажность: 2 / 2.
1/12
Код объекта: 368181.
Тип объекта: Помещение общественного питания.
Площадь: 101 м².
Этаж / Этажность: 1 / 1.
1/6
Код объекта: 369354.
Тип объекта: Помещение общественного питания.
Площадь: 105.1 м².
Этаж / Этажность: 1 / 9.
1/8
Код объекта: 257360.
Тип объекта: Помещение общественного питания.
Площадь: 100 м².
Этаж / Этажность: 1 / 3.
1/18
Код объекта: 349379.
Тип объекта: Помещение общественного питания.
Площадь: 138 м².
Этаж / Этажность: 1 / 2.
1/9
Код объекта: 20247.
Тип объекта: Торговое помещение.
Площадь: 110 м².
Этаж / Этажность: 1 / 1.
1/1
Код объекта: 326105.
Тип объекта: .

Не хочу искать, перезвоните мне!

Оставьте номер телефона, наш специалист свяжется с вами и поможет с подбором недвижимости!