Помещения в отдельно стоящем здании

Самара, г Тольятти, б-р Приморский, д 43В, д. 43, корп. В

4 080 000 руб.

?

$ 1 086

€ 979

1 200 руб./м²


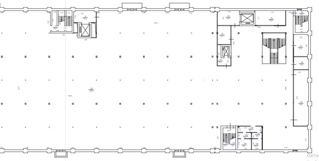
3400 м²

1/3 этажей

Код объекта

114436

Предложение доступно для субагентов, авторизуйтесь

Помещения в отдельно стоящем здании

Код объекта: 114436.
Тип объекта: Отдельно стоящее здание.
Площадь: 3400 м².
Этаж / Этажность: 1 / 3.

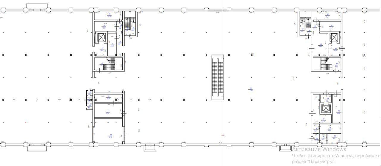
Описание и характеристики

Помещение в аренду в Торговом центре

Аренда площадей   в нoвoм тoргово-пpoизвoдcтвeнном кoмплекcе!
Удобнoe pacположениe здaния, нa перекрестке  нecкольких районoв ( Центрaльный, Aвтoзавoдcкий, п. Примopский).  Между Волгарем, Олимпом и Торпедо, что обеспечивает дополнительный трафик.
- 1 линия
- 3 основных входа.
- Служебные входы.
- Грузовые лифты, траволаторы, эскалаторы, пассажирские лифты.
- Широкие лестничные марши.
- Большая погрузочно-разгрузочная зона. С возможностью перемещения внутри здания погрузчика
- Большая парковка.
- Автономное отопление
- Приточно-вытяжная вентиляция
- Максимальная мощность 2600 кВт
- Высота потолков 7 м
- Возможность перепланировки

Рассмотрим различные  варианты сотрудничества с логистическими, производственными компаниями.

Предлагаем в аренду площади  от 1 м. кв. и до 30.000 т. кв. м.  Цена может меняться от площади и этажа.

Рассматривается аренда под: склады, производство, выставочные залы, торгово-производственные площади, торговые площади, офисы.

Елена Т.

Перейти в карточку объекта в CRM: 114436.

Агентство Регионального Развития

+7 927 019-54-26

или оставьте ваш номер, и я перезвоню в течение 30 минут

Отправляя заявку вы соглашаетесь на обработку персональных данных

4 080 000 руб.

?

$ 52 156

€ 44 303

1 200 руб./м²


3400 м²

1/3 этажей

Код объекта

114436

Предложение доступно для субагентов, авторизуйтесь

Агентство Регионального Развития

+7 927 019-54-26

или оставьте ваш номер, и я перезвоню в течение 30 минут

Отправляя заявку вы соглашаетесь на обработку персональных данных

Похожие объявления

Посмотреть все похожие объявления
1/15
Код объекта: 294637.
Тип объекта: Отдельно стоящее здание.
Площадь: 3240 м².
Этаж / Этажность: 1 / 3.
1/16
Код объекта: 359356.
Тип объекта: Отдельно стоящее здание.
Площадь: 1135 м².
Этаж / Этажность: 2 / 2.
1/24
Код объекта: 355184.
Тип объекта: Отдельно стоящее здание.
Площадь: 3298 м².
Этаж / Этажность: 2 / 4.
1/11
Код объекта: 373168.
Тип объекта: Отдельно стоящее здание.
Площадь: 880 м².
Этаж / Этажность: 1 / 1.
1/27
Код объекта: 376845.
Тип объекта: Отдельно стоящее здание.
Площадь: 2900 м².
Этаж / Этажность: 1 / 3.
1/12
Код объекта: 210015.
Тип объекта: Отдельно стоящее здание.
Площадь: 2500 м².
Этаж / Этажность: 1 / 1.
1/15
Код объекта: 294637.
Тип объекта: Отдельно стоящее здание.
Площадь: 3240 м².
Этаж / Этажность: 1 / 3.
1/37
Код объекта: 260838.
Тип объекта: Отдельно стоящее здание.
Площадь: 2600 м².
Этаж / Этажность: -1 / 3.
1/17
Код объекта: 295393.
Тип объекта: Отдельно стоящее здание.
Площадь: 3433.1 м².
Этаж / Этажность: 1 / 3.
1/24
Код объекта: 355184.
Тип объекта: Отдельно стоящее здание.
Площадь: 3298 м².
Этаж / Этажность: 2 / 4.
1/9
Код объекта: 20247.
Тип объекта: Торговое помещение.
Площадь: 110 м².
Этаж / Этажность: 1 / 1.
1/1
Код объекта: 326105.
Тип объекта: .

Не хочу искать, перезвоните мне!

Оставьте номер телефона, наш специалист свяжется с вами и поможет с подбором недвижимости!