Сдам отдельно стоящее здание общей площадью от 50 м² до 222 м²

Армавир, хутор Красная Поляна, ул Баррикадная, д. 77а

222 000 руб.

?

$ 1 086

€ 979

1 000 руб./м²


222 м²

1/1 этажей

Код объекта

134046

Предложение доступно для субагентов, авторизуйтесь

Сдам Отдельно стоящее здание общей площадью от 50 м² до 222 м²

Код объекта: 134046.
Тип объекта: Отдельно стоящее здание.
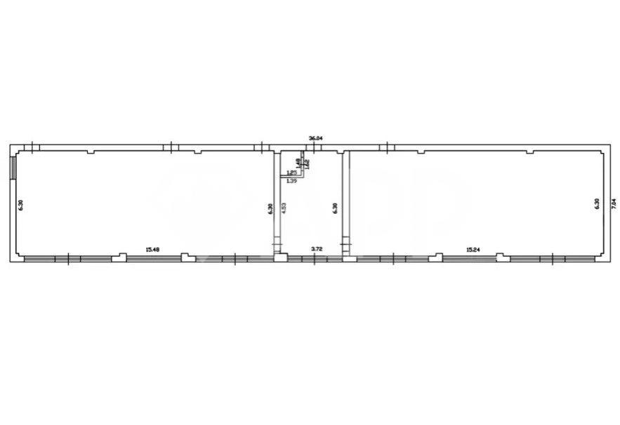
Площадь: 222 м².
Этаж / Этажность: 1 / 1.

Описание и характеристики

Предлагаем в аренду помещение свободного назначения от 50 м² до 222 м², расположенное по адресу: г. Армавир, ул. Армавирская\Баррикадная. От собственника. Без комиссии.

-Помещение находится на одной из центральных улиц, в выходом на проезжую часть
-В районе с большим автомобильным трафиком
-Имеется своя парковка
-Помещение находиться на первом этаже
-Отдельный вход, имеется запасной выход
-Фасад помещения отремонтирован, имеется выход на наружную рекламу
-В помещении сдается с ремонтом ремонт (пол плитка, стены окрашены, потолок амстронг)
- Имеются все коммуникации (освещение,  автономное отопление, с/у, пожарная и охранная сигнализация).
- Возможность работы 24/7

По всем вопросам обращаться к руководителю отдела продаж Екатерина. От собственника. Без комиссии.

Перейти в карточку объекта в CRM: 134046.

Екатерина Дерюшева

+7 989 127-03-40

или оставьте ваш номер, и я перезвоню в течение 30 минут

Отправляя заявку вы соглашаетесь на обработку персональных данных

222 000 руб.

?

$ 2 884

€ 2 466

1 000 руб./м²


222 м²

1/1 этажей

Код объекта

134046

Предложение доступно для субагентов, авторизуйтесь

Екатерина Дерюшева

+7 989 127-03-40

или оставьте ваш номер, и я перезвоню в течение 30 минут

Отправляя заявку вы соглашаетесь на обработку персональных данных

Похожие объявления

Посмотреть все похожие объявления
1/6
Код объекта: 241774.
Тип объекта: Отдельно стоящее здание.
Площадь: 450 м².
Этаж / Этажность: 1 / 1.
1/50
Код объекта: 256641.
Тип объекта: Отдельно стоящее здание.
Площадь: 200 м².
Этаж / Этажность: 2 / 7.
1/23
Код объекта: 258263.
Тип объекта: Отдельно стоящее здание.
Площадь: 253 м².
Этаж / Этажность: 3 / 3.
1/8
Код объекта: 277561.
Тип объекта: Отдельно стоящее здание.
Площадь: 291.8 м².
Этаж / Этажность: -1 / 2.
1/26
Код объекта: 278818.
Тип объекта: Отдельно стоящее здание.
Площадь: 500 м².
Этаж / Этажность: 1 / 1.
1/9
Код объекта: 256191.
Тип объекта: Отдельно стоящее здание.
Площадь: 180 м².
Этаж / Этажность: 1 / 1.
1/50
Код объекта: 256641.
Тип объекта: Отдельно стоящее здание.
Площадь: 200 м².
Этаж / Этажность: 2 / 7.
1/23
Код объекта: 258263.
Тип объекта: Отдельно стоящее здание.
Площадь: 253 м².
Этаж / Этажность: 3 / 3.
1/11
Код объекта: 262307.
Тип объекта: Отдельно стоящее здание.
Площадь: 270 м².
Этаж / Этажность: 1 / 1.
1/12
Код объекта: 282629.
Тип объекта: Отдельно стоящее здание.
Площадь: 161 м².
Этаж / Этажность: 1 / 1.

Не хочу искать, перезвоните мне!

Оставьте номер телефона, наш специалист свяжется с вами и поможет с подбором недвижимости!