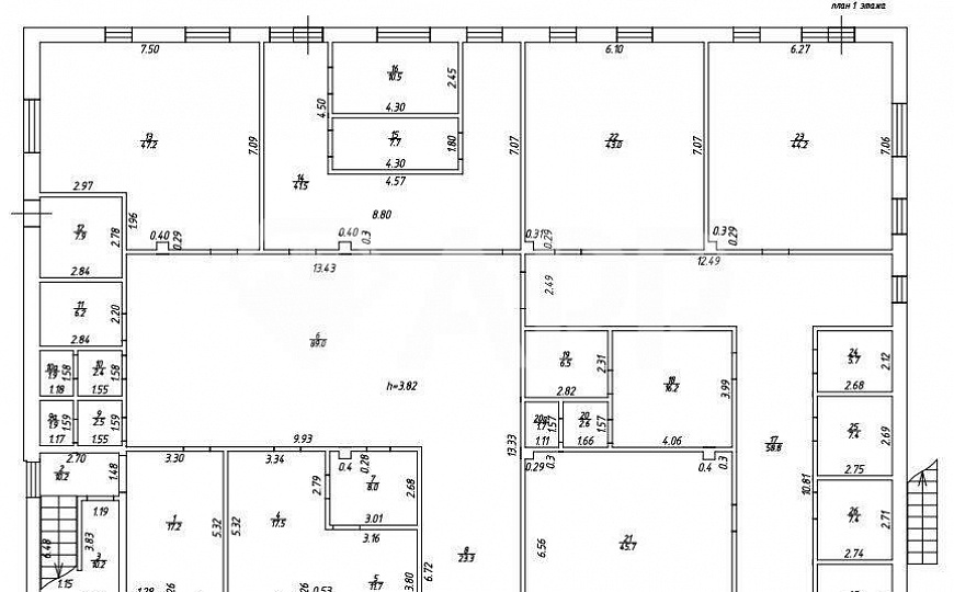
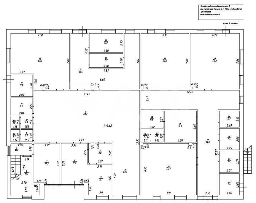
Здание 1136,7м² с парковкой

Казань, ул Четаева, д. 17

2 046 060 руб.

?

$ 1 086

€ 979

1 800 руб./м²


1136.7 м²

1/2 этажей

Код объекта

130527

Предложение доступно для субагентов, авторизуйтесь

Здание 1136,7м² с парковкой

Код объекта: 130527.
Тип объекта: Отдельно стоящее здание.
Площадь: 1136.7 м².
Этаж / Этажность: 1 / 2.
Назначения: Медучреждение.

Описание и характеристики

Характеристики:
- 2 линия
- Отдельная входная группа
- Своя парковка
- Доступ 24/7
- ХВС/ГВС
- Центральное отопление
- Черновой ремонт
- Кабинетная планировка
- Отдельно стоящее здание
- С окнами
- Инфраструктура: Кафе/столовые, Магазины, Банки
- Коммунальные услуги оплачиваются отдельно

Дополнительная информация:
Новое здание под мед.центр, клинику. Пять  входных групп. Площадь поэтажно - 563,4м2 и  573,3м2. Высота потолков: 1 эт.- 3,82м, 2эт.- 3,67м. Эксплуатируемая кровля- терраса, с возможностью утеплить. Своя парковка на 25 автомобилей. Локация пересечение пр.Ямашева и Амирхана.
АРР2

По всем вопросам можете обращаться к представителю собственника: Геннадий (217)

Перейти в карточку объекта в CRM: 130527.

Миляуша

+7 927 044-09-47

или оставьте ваш номер, и я перезвоню в течение 30 минут

Отправляя заявку вы соглашаетесь на обработку персональных данных

2 046 060 руб.

?

$ 26 335

€ 22 433

1 800 руб./м²


1136.7 м²

1/2 этажей

Код объекта

130527

Предложение доступно для субагентов, авторизуйтесь

Миляуша

+7 927 044-09-47

или оставьте ваш номер, и я перезвоню в течение 30 минут

Отправляя заявку вы соглашаетесь на обработку персональных данных

Похожие объявления

Посмотреть все похожие объявления
1/12
Код объекта: 210015.
Тип объекта: Отдельно стоящее здание.
Площадь: 2500 м².
Этаж / Этажность: 1 / 1.
1/12
Код объекта: 255660.
Тип объекта: Отдельно стоящее здание.
Площадь: 700 м².
Этаж / Этажность: 1 / 2.
1/8
Код объекта: 356576.
Тип объекта: Отдельно стоящее здание.
Площадь: 2000 м².
Этаж / Этажность: 1 / 1.
1/12
Код объекта: 295475.
Тип объекта: Отдельно стоящее здание.
Площадь: 653.9 м².
Этаж / Этажность: -1 / 1.
1/23
Код объекта: 360194.
Тип объекта: Отдельно стоящее здание.
Площадь: 480 м².
Этаж / Этажность: 1 / 3.
1/26
Код объекта: 255488.
Тип объекта: Отдельно стоящее здание.
Площадь: 910 м².
Этаж / Этажность: 1 / 2.
1/14
Код объекта: 258415.
Тип объекта: Отдельно стоящее здание.
Площадь: 1200 м².
Этаж / Этажность: 1 / 2.
1/9
Код объекта: 297717.
Тип объекта: Отдельно стоящее здание.
Площадь: 800 м².
Этаж / Этажность: 1 / 3.
1/6
Код объекта: 278174.
Тип объекта: Отдельно стоящее здание.
Площадь: 1000 м².
Этаж / Этажность: 1 / 3.
1/12
Код объекта: 280758.
Тип объекта: Отдельно стоящее здание.
Площадь: 1113.7 м².
Этаж / Этажность: 1 / 2.
1/9
Код объекта: 20247.
Тип объекта: Торговое помещение.
Площадь: 110 м².
Этаж / Этажность: 1 / 1.
1/1
Код объекта: 326105.
Тип объекта: .

Не хочу искать, перезвоните мне!

Оставьте номер телефона, наш специалист свяжется с вами и поможет с подбором недвижимости!