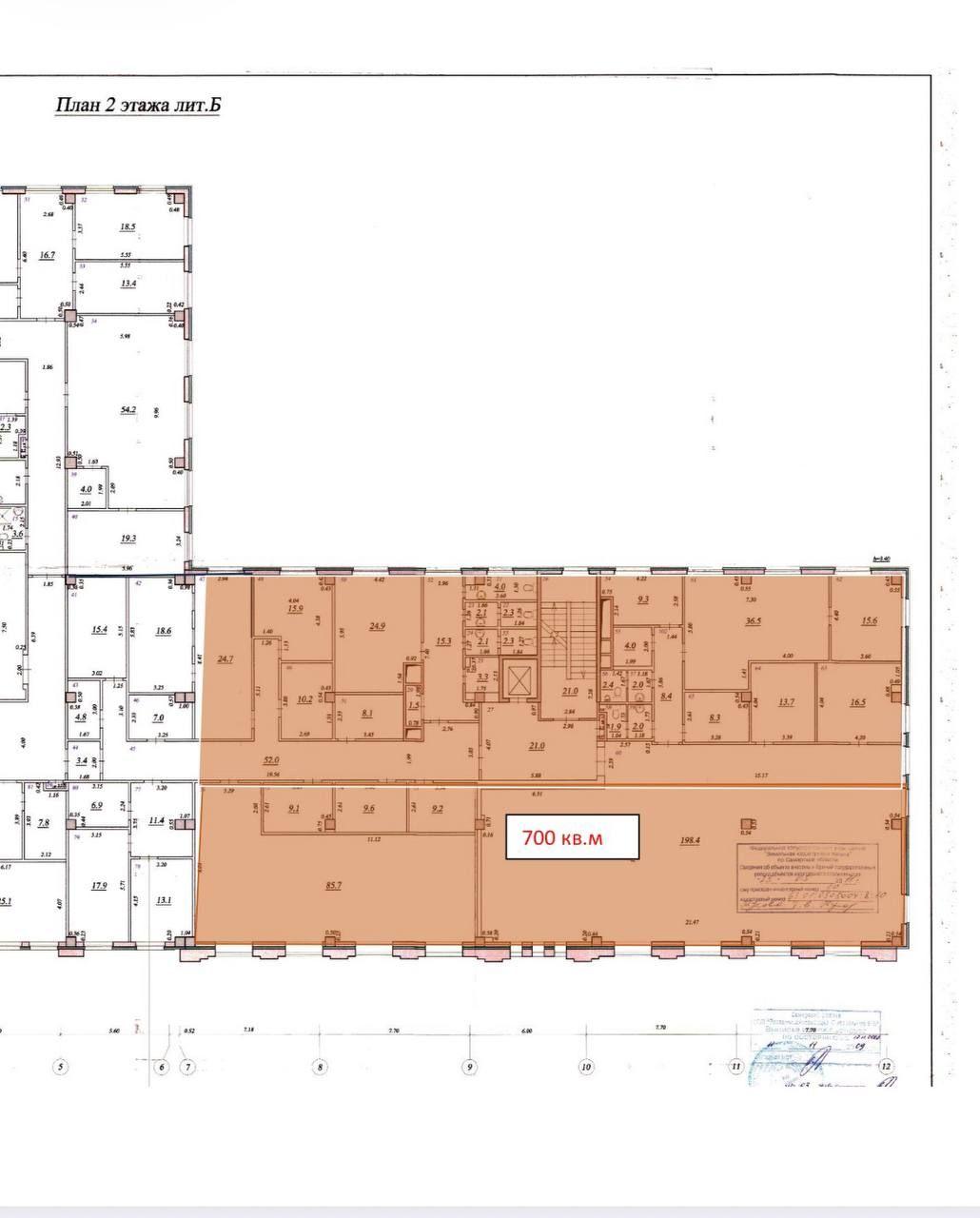
Аренда офиса 700 кв.м. в БЦ «БэлПлаза»

Самара, ул Молодогвардейская, д. 204

1 400 000 руб.

?

$ 1 086

€ 979

2 000 руб./м²


700 м²

2/10 этажей

Код объекта

132301

Предложение доступно для субагентов, авторизуйтесь

Аренда офиса 700 кв.м. в БЦ «БэлПлаза»

Код объекта: 132301.
Тип объекта: Офисное помещение.
Площадь: 700 м².
Этаж / Этажность: 2 / 10.
Назначения: Банк, Офис.

Описание и характеристики

От собственника! Без комиссии!

Характеристики:
- 1 линия
- Общая входная группа
- Подземная парковка
- Доступ 24/7
- Хороший ремонт
- Кабинетная планировка
- Бизнес центр
- Имеется лифт
- Высота потолков 3 м
- Видеонаблюдение
- Коммунальные услуги оплачиваются отдельно
- Предоставление юридического адреса

Высокий транспортный и пешеходный трафик в течение всего дня. Развитая инфраструктура. - Основные характеристики и преимущества помещения:
- Ремонт: пол керамогранит, стены под покраску, потолок армстронг, светодиодное освещение.
-Установлена система противопожарной сигнализации и автоматического пожаротушения.
- Радиаторы работают на подачу тепла и холода (три скорости подачи).
- 10 интернет провайдеров.
- Несколько санузлов.
- Доступ в помещение 24/7 - Круглосуточная охрана и видеонаблюдение.
- В офисном центре находится подземный двухуровневый паркинг на 82 машиноместа. - Предоставляется юридический адрес.  В непосредственной близости от Бизнес-центра располагаются Правительство Самарской области, Государственная Дума, учебные заведения, рестораны. Арендаторами «Бэл плазы» являются крупные инвестиционные и финансовые организации, банки. В Бизнес- центре на первом этаже расположен ресторан «Едатека», кофейня Cup-Cup.

По всем вопросам можете обращаться к представителю собственника: Наталья Г.

Перейти в карточку объекта в CRM: 132301.

Агентство Регионального Развития

+7 927 019-54-26

или оставьте ваш номер, и я перезвоню в течение 30 минут

Отправляя заявку вы соглашаетесь на обработку персональных данных

1 400 000 руб.

?

$ 18 169

€ 15 377

2 000 руб./м²


700 м²

2/10 этажей

Код объекта

132301

Предложение доступно для субагентов, авторизуйтесь

Агентство Регионального Развития

+7 927 019-54-26

или оставьте ваш номер, и я перезвоню в течение 30 минут

Отправляя заявку вы соглашаетесь на обработку персональных данных

Похожие объявления

Посмотреть все похожие объявления
1/8
Код объекта: 257123.
Тип объекта: Офисное помещение.
Площадь: 562 м².
Этаж / Этажность: 1 / 7.
1/32
Код объекта: 292155.
Тип объекта: Офисное помещение.
Площадь: 500 м².
Этаж / Этажность: 2 / 4.
1/20
Код объекта: 281522.
Тип объекта: Офисное помещение.
Площадь: 707.6 м².
Этаж / Этажность: 2 / 6.
1/40
Код объекта: 259031.
Тип объекта: Офисное помещение.
Площадь: 760 м².
Этаж / Этажность: 3 / 6.
1/15
Код объекта: 300196.
Тип объекта: Офисное помещение.
Площадь: 420 м².
Этаж / Этажность: 4 / 4.
1/8
Код объекта: 257123.
Тип объекта: Офисное помещение.
Площадь: 562 м².
Этаж / Этажность: 1 / 7.
1/16
Код объекта: 224349.
Тип объекта: Офисное помещение.
Площадь: 500 м².
Этаж / Этажность: 2 / 2.
1/32
Код объекта: 292155.
Тип объекта: Офисное помещение.
Площадь: 500 м².
Этаж / Этажность: 2 / 4.
1/14
Код объекта: 339319.
Тип объекта: Офисное помещение.
Площадь: 570 м².
Этаж / Этажность: 6 / 9.
1/25
Код объекта: 267821.
Тип объекта: Офисное помещение.
Площадь: 723 м².
Этаж / Этажность: 1 / 10.
1/9
Код объекта: 20247.
Тип объекта: Торговое помещение.
Площадь: 110 м².
Этаж / Этажность: 1 / 1.
1/1
Код объекта: 326105.
Тип объекта: .

Не хочу искать, перезвоните мне!

Оставьте номер телефона, наш специалист свяжется с вами и поможет с подбором недвижимости!