Сдам офисное помещение, 1 000 м²

Великий Новгород, Воскресенский б-р, д. 4

800 000 руб.

?

$ 1 086

€ 979

800 руб./м²


1000 м²

1/2 этажей

Код объекта

119997

Предложение доступно для субагентов, авторизуйтесь

Сдам Офисное помещение, 1 000 м²

Код объекта: 119997.
Тип объекта: Офисное помещение.
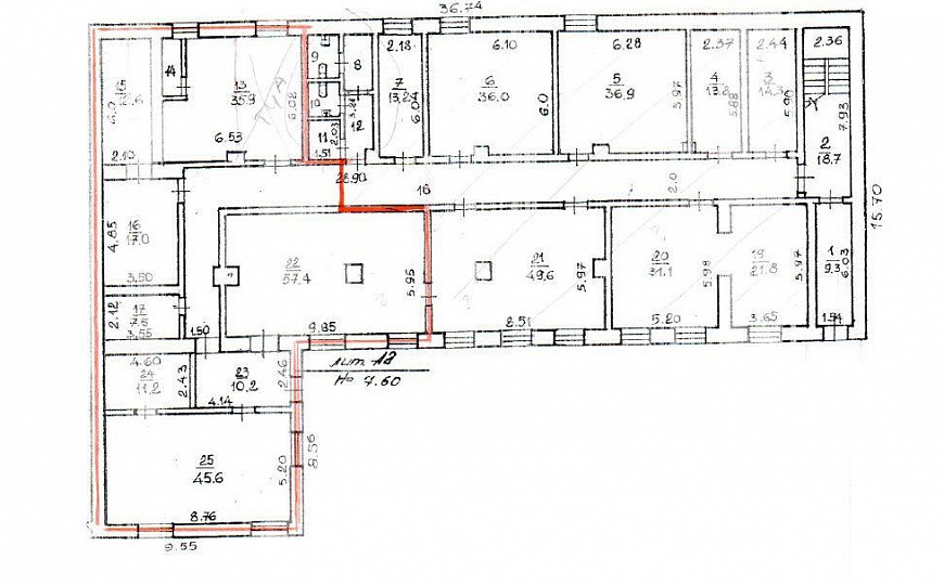
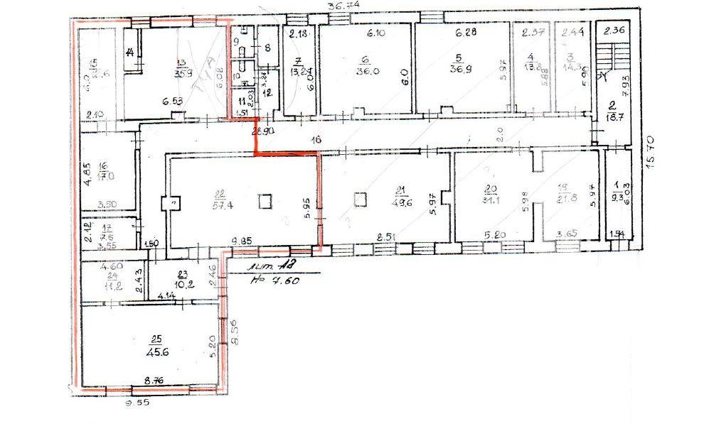
Площадь: 1000 м².
Этаж / Этажность: 1 / 2.
Назначения: Офис.

Описание и характеристики

-----------------------------------------------------------
АРЕНДА ОТ СОБСТВЕННИКА. БЕЗ КОМИССИИ ДЛЯ АРЕНДАТОРА.
-----------------------------------------------------------

Предлагаются в аренду отдельностоящее административное здание, общей площадью 1000 м², расположенные по адресу: Воскресенский Бульвар, д. 4.
Отдельными плюсами являются:
- исторический центр города, престижный район;
- 2 этажа;
- возможна аренда отдельно одного этажа (500 кв.м.)
- 1-я линия;
- большой пешеходный и а/м трафик;
- развитая инфраструктура (рядом крупный гостиничный комплекс, сеть магазинов, кафе, столовая, киноцентр и т.д.);
- наличие собственной зоны парковки;
- все коммуникации в офисе;
- наличие систем пожарной и охранной сигнализации;
- кабинетная планировка, возможность перепланировок;
- высота потолка 1 этажа - 3.80 м, 2 этажа - 2.70;
- хороший ремонт;
- возможность размещения вывески на фасаде.

Стоимость аренды помещения составляет 800 рублей за кв.м. + компенсация КУ
-------------------------------------------------------

УК "Агентство регионального развития".
Вся коммерческая недвижимость Великого Новгорода.
От собственника. Без комиссии.

Перейти в карточку объекта в CRM: 119997.

АРР Великий Новгород

+7 921 730-92-01

или оставьте ваш номер, и я перезвоню в течение 30 минут

Отправляя заявку вы соглашаетесь на обработку персональных данных

800 000 руб.

?

$ 10 330

€ 8 745

800 руб./м²


1000 м²

1/2 этажей

Код объекта

119997

Предложение доступно для субагентов, авторизуйтесь

АРР Великий Новгород

+7 921 730-92-01

или оставьте ваш номер, и я перезвоню в течение 30 минут

Отправляя заявку вы соглашаетесь на обработку персональных данных

Похожие объявления

Посмотреть все похожие объявления
1/8
Код объекта: 257123.
Тип объекта: Офисное помещение.
Площадь: 562 м².
Этаж / Этажность: 1 / 7.
1/14
Код объекта: 242398.
Тип объекта: Офисное помещение.
Площадь: 386.9 м².
Этаж / Этажность: 4 / 20.
1/25
Код объекта: 267821.
Тип объекта: Офисное помещение.
Площадь: 723 м².
Этаж / Этажность: 1 / 10.
1/10
Код объекта: 334658.
Тип объекта: Офисное помещение.
Площадь: 480 м².
Этаж / Этажность: 1 / 3.
1/25
Код объекта: 371389.
Тип объекта: Офисное помещение.
Площадь: 233 м².
Этаж / Этажность: 3 / 14.
1/25
Код объекта: 267821.
Тип объекта: Офисное помещение.
Площадь: 723 м².
Этаж / Этажность: 1 / 10.
1/14
Код объекта: 305425.
Тип объекта: Офисное помещение.
Площадь: 800 м².
Этаж / Этажность: 1 / 2.
1/26
Код объекта: 394174.
Тип объекта: Офисное помещение.
Площадь: 1151.5 м².
Этаж / Этажность: 2 / 4.
1/7
Код объекта: 350680.
Тип объекта: Офисное помещение.
Площадь: 750 м².
Этаж / Этажность: 2 / 3.
1/33
Код объекта: 378849.
Тип объекта: Офисное помещение.
Площадь: 902 м².
Этаж / Этажность: 1 / 4.
1/9
Код объекта: 20247.
Тип объекта: Торговое помещение.
Площадь: 110 м².
Этаж / Этажность: 1 / 1.
1/1
Код объекта: 326105.
Тип объекта: .

Не хочу искать, перезвоните мне!

Оставьте номер телефона, наш специалист свяжется с вами и поможет с подбором недвижимости!