Сдается производственное помещение 671 м²

Ижевск, ул 14-я, д. 141Б

301 950 руб.

?

$ 1 086

€ 979

450 руб./м²


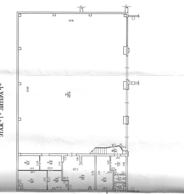
671 м²

1/1 этажей

Код объекта

126914

Предложение доступно для субагентов, авторизуйтесь

Сдается Производственное помещение 671 м²

Код объекта: 126914.
Тип объекта: Производственное помещение.
Площадь: 671 м².
Этаж / Этажность: 1 / 1.

Описание и характеристики

Характеристики:
- Теплый склад
- Доступ 24/7
- ХВС/Бойлер
- Свой санузел
- Индивидуальное отопление
- Высота потолков 10 м
- Высота ворот 4.5 м
- Напольное покрытие - Бетонный пол
- Максимальная мощность 400 кВт
- Техника для погрузки: Кран балка
- Подъездные пути под грузовой транспорт, легковой транспорт
- Дополнительные преимущества: Ж/Д ветка, Площадка рядом с помещением, Место для маневра транспорта
- Коммунальные услуги оплачиваются отдельно

Дополнительная информация:
Сдается производственное помещение в промышленной зоне деловой активности. В пяти минутах остановка общественного транспорта. Отличные подъездные пути для фур длинномеров. От базы десять минут до центра города. В производственном помещении имеются свои раздевалки, кухня, душевые для персонала. Кран -балка 3т. Ждем ваших предложений по аренде!
АРР0

По всем вопросам можете обращаться к представителю собственника: Сергей

Перейти в карточку объекта в CRM: 126914.

Миляуша

+7 937 008-56-34

или оставьте ваш номер, и я перезвоню в течение 30 минут

Отправляя заявку вы соглашаетесь на обработку персональных данных

301 950 руб.

?

$ 3 977

€ 3 390

450 руб./м²


671 м²

1/1 этажей

Код объекта

126914

Предложение доступно для субагентов, авторизуйтесь

Миляуша

+7 937 008-56-34

или оставьте ваш номер, и я перезвоню в течение 30 минут

Отправляя заявку вы соглашаетесь на обработку персональных данных

Похожие объявления

Посмотреть все похожие объявления
1/21
Код объекта: 201098.
Тип объекта: Производственное помещение.
Площадь: 3400 м².
Этаж / Этажность: 1 / 1.
1/8
Код объекта: 261504.
Тип объекта: Производственное помещение.
Площадь: 1080 м².
Этаж / Этажность: 1 / 1.
1/12
Код объекта: 196958.
Тип объекта: Производственное помещение.
Площадь: 800 м².
Этаж / Этажность: 4 / 4.
1/14
Код объекта: 338247.
Тип объекта: Производственное помещение.
Площадь: 1500 м².
Этаж / Этажность: 1 / 1.
1/14
Код объекта: 306297.
Тип объекта: Производственное помещение.
Площадь: 370 м².
Этаж / Этажность: 2 / 2.
1/16
Код объекта: 251189.
Тип объекта: Производственное помещение.
Площадь: 800 м².
Этаж / Этажность: 1 / 2.
1/15
Код объекта: 267997.
Тип объекта: Производственное помещение.
Площадь: 500 м².
Этаж / Этажность: 3 / 3.
1/12
Код объекта: 196958.
Тип объекта: Производственное помещение.
Площадь: 800 м².
Этаж / Этажность: 4 / 4.
1/23
Код объекта: 338244.
Тип объекта: Производственное помещение.
Площадь: 551 м².
Этаж / Этажность: 1 / 1.
1/19
Код объекта: 295323.
Тип объекта: Производственное помещение.
Площадь: 870 м².
Этаж / Этажность: 1 / 1.
1/9
Код объекта: 20247.
Тип объекта: Торговое помещение.
Площадь: 110 м².
Этаж / Этажность: 1 / 1.
1/1
Код объекта: 326105.
Тип объекта: .

Не хочу искать, перезвоните мне!

Оставьте номер телефона, наш специалист свяжется с вами и поможет с подбором недвижимости!