Сдается в аренду теплый склад 3800м2

Самара, ш Смышляевское, д. 1А

2 280 000 руб.

?

$ 1 086

€ 979

600 руб./м²


3800 м²

1/1 этажей

Код объекта

123514

Предложение доступно для субагентов, авторизуйтесь

Сдается в аренду теплый склад 3800м2

Код объекта: 123514.
Тип объекта: Складское помещение.
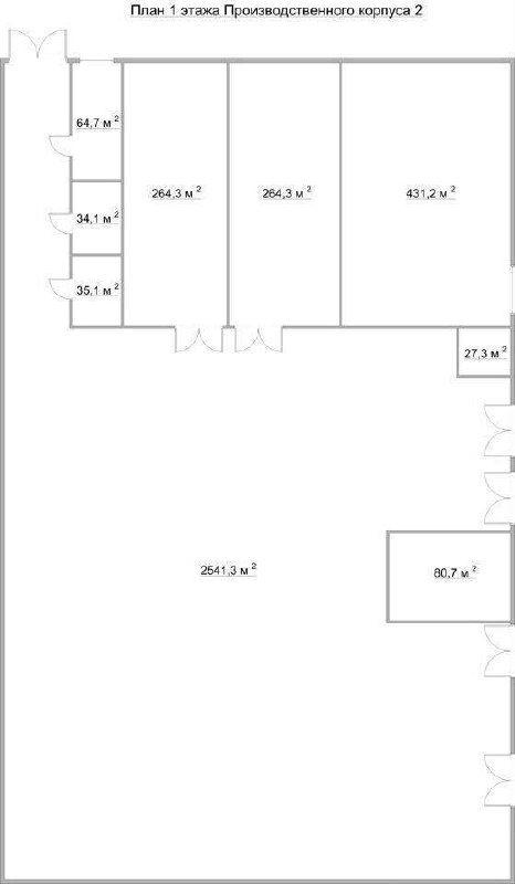
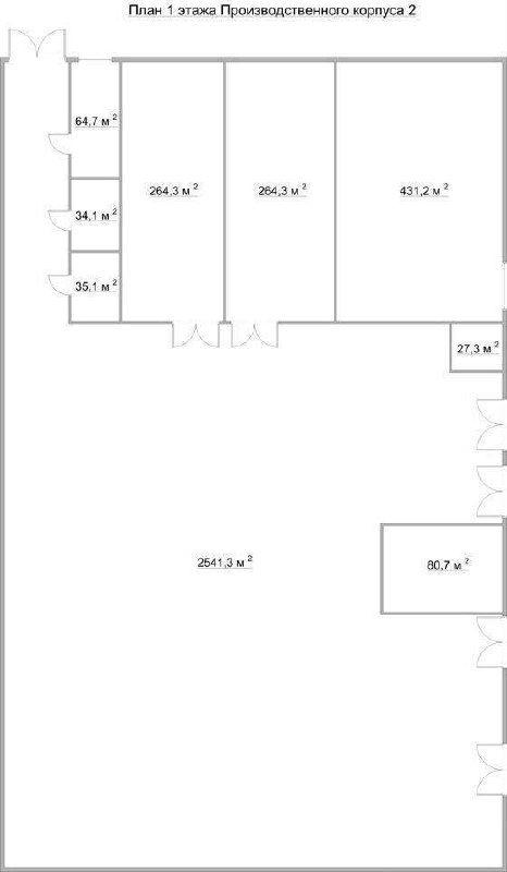
Площадь: 3800 м².
Этаж / Этажность: 1 / 1.
Назначения: Производство, Склад.

Описание и характеристики

От собственника! Без комиссии!

Характеристики:
- Теплый склад
- Доступ 24/7
- ХВС
- Свой санузел
- Центральное отопление
- Высота потолков 8.85 м

Дополнительная информация:
Аренда тёплый склад 3.743м2 по адресу:
г. Самара, Кировский р-н, поселок Зубчаниновка, Смышляевское шоссе, 1а.
От собственника, без комиссии.
Основные характеристики:
- отапливаемый склад размерами 54х72 м;

- 8 ворот 4.5х4.585 , роллетные, ворота разнесены (в торце здания и с широких стен);
- высота потолков 8,85 метров;
- пандусы и навесы на погрузке-разгрузке. ;
- полы ровные бетон антипыль;
- сан. узел, душ;
- пожарная и охранная сигнализация;
- эл. мощность 1.26 МВт;
- маневр длинномеров;
- удобные подъездные пути;
- доступ 24/7.
Коммунальные услуги оплачиваются отдельно.
Помещение в собственности, возможна аренда на долгий срок. 
Возможна аренда офисов дополнительно в этом же здании.

По всем вопросам можете обращаться к представителю собственника: Ирина Л.

Перейти в карточку объекта в CRM: 123514.

Агентство Регионального Развития

+7 927 019-54-26

или оставьте ваш номер, и я перезвоню в течение 30 минут

Отправляя заявку вы соглашаетесь на обработку персональных данных

2 280 000 руб.

?

$ 29 343

€ 25 237

600 руб./м²


3800 м²

1/1 этажей

Код объекта

123514

Предложение доступно для субагентов, авторизуйтесь

Агентство Регионального Развития

+7 927 019-54-26

или оставьте ваш номер, и я перезвоню в течение 30 минут

Отправляя заявку вы соглашаетесь на обработку персональных данных

Похожие объявления

Посмотреть все похожие объявления
1/9
Код объекта: 283764.
Тип объекта: Складское помещение.
Площадь: 1470 м².
Этаж / Этажность: 1 / 1.
1/12
Код объекта: 340273.
Тип объекта: Складское помещение.
Площадь: 930 м².
Этаж / Этажность: 1 / 2.
1/23

2 160 000 руб.

1 000 руб./м²

Код объекта: 345544.
Тип объекта: Складское помещение.
Площадь: 2160 м².
Этаж / Этажность: 1 / 1.
1/6
Код объекта: 335888.
Тип объекта: Складское помещение.
Площадь: 1700 м².
Этаж / Этажность: 1 / 1.
1/13
Код объекта: 370810.
Тип объекта: Складское помещение.
Площадь: 6504.2 м².
Этаж / Этажность: 1 / 3.
1/7
Код объекта: 228126.
Тип объекта: Складское помещение.
Площадь: 3700 м².
Этаж / Этажность: 1 / 5.
1/38
Код объекта: 230667.
Тип объекта: Складское помещение.
Площадь: 4000 м².
Этаж / Этажность: 1 / 2.
1/9
Код объекта: 260766.
Тип объекта: Складское помещение.
Площадь: 3570 м².
Этаж / Этажность: 1 / 1.
1/10
Код объекта: 344248.
Тип объекта: Складское помещение.
Площадь: 2700 м².
Этаж / Этажность: 1 / 1.
1/11
Код объекта: 355340.
Тип объекта: Складское помещение.
Площадь: 2700 м².
Этаж / Этажность: 1 / 1.
1/9
Код объекта: 20247.
Тип объекта: Торговое помещение.
Площадь: 110 м².
Этаж / Этажность: 1 / 1.
1/1
Код объекта: 326105.
Тип объекта: .

Не хочу искать, перезвоните мне!

Оставьте номер телефона, наш специалист свяжется с вами и поможет с подбором недвижимости!