Склад-производство

Саратов, ул Автокомбинатовская, д. 11Б

300 000 руб.

?

$ 1 086

€ 979

500 руб./м²


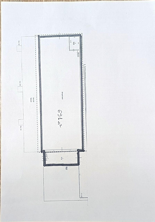
600 м²

1/1 этажей

Код объекта

132994

Предложение доступно для субагентов, авторизуйтесь

Склад-производство

Код объекта: 132994.
Тип объекта: Складское помещение.
Площадь: 600 м².
Этаж / Этажность: 1 / 1.

Описание и характеристики

От собственника! Без комиссии!

Характеристики:
- Теплый склад
- Доступ 24/7
- ХВС/Бойлер
- Свой санузел
- Автономное отопление
- Высота потолков 8 м
- Напольное покрытие - Антипыль
- Подъездные пути под грузовой транспорт, легковой транспорт
- Дополнительные преимущества: Площадка рядом с помещением, Место для маневра транспорта
- Коммунальные услуги оплачиваются отдельно

Дополнительная информация:
Сдается отапливаемый склад. Склад оборудован стеллажами и противопыльными полами.                                                                   Охраняемая территория, отдельный вход и ворота для выгрузки в помещении.                                                                       На территории также имеются склады другой площади:  
700 р/м.кв:                                                
Холодильник (0-+6 град)100 м.кв.              
Холодильник (0-+6 град) 130м.кв.                
Морозильник (-20 -16 град) 100м.кв.                                                    
Холодильник 100 м.кв., совмещённый с морозильником 50 м.кв.                                        
250 р/м.кв:                                                                    
Отапливаемый склад 126 м.кв.                              
Торг.

По всем вопросам можете обращаться к представителю собственника: Андрей Н.

Перейти в карточку объекта в CRM: 132994.

Агентство Регионального Развития

+7 900 312-59-99

или оставьте ваш номер, и я перезвоню в течение 30 минут

Отправляя заявку вы соглашаетесь на обработку персональных данных

300 000 руб.

?

$ 3 890

€ 3 296

500 руб./м²


600 м²

1/1 этажей

Код объекта

132994

Предложение доступно для субагентов, авторизуйтесь

Агентство Регионального Развития

+7 900 312-59-99

или оставьте ваш номер, и я перезвоню в течение 30 минут

Отправляя заявку вы соглашаетесь на обработку персональных данных

Похожие объявления

Посмотреть все похожие объявления
1/17
Код объекта: 221179.
Тип объекта: Складское помещение.
Площадь: 654.2 м².
Этаж / Этажность: 1 / 1.
1/13
Код объекта: 242615.
Тип объекта: Складское помещение.
Площадь: 1000 м².
Этаж / Этажность: 1 / 1.
1/32
Код объекта: 303836.
Тип объекта: Складское помещение.
Площадь: 585 м².
Этаж / Этажность: 1 / 1.
1/9
Код объекта: 335444.
Тип объекта: Складское помещение.
Площадь: 250 м².
Этаж / Этажность: -1 / 3.
1/10
Код объекта: 364425.
Тип объекта: Складское помещение.
Площадь: 300 м².
Этаж / Этажность: 1 / 1.
1/17
Код объекта: 221179.
Тип объекта: Складское помещение.
Площадь: 654.2 м².
Этаж / Этажность: 1 / 1.
1/4
Код объекта: 189597.
Тип объекта: Складское помещение.
Площадь: 728 м².
Этаж / Этажность: 1 / 1.
1/13
Код объекта: 280774.
Тип объекта: Складское помещение.
Площадь: 500 м².
Этаж / Этажность: 1 / 3.
1/11
Код объекта: 272273.
Тип объекта: Складское помещение.
Площадь: 500 м².
Этаж / Этажность: 1 / 1.
1/8
Код объекта: 242122.
Тип объекта: Складское помещение.
Площадь: 700 м².
Этаж / Этажность: 1 / 1.
1/9
Код объекта: 20247.
Тип объекта: Торговое помещение.
Площадь: 110 м².
Этаж / Этажность: 1 / 1.
1/1
Код объекта: 326105.
Тип объекта: .

Не хочу искать, перезвоните мне!

Оставьте номер телефона, наш специалист свяжется с вами и поможет с подбором недвижимости!