ПСН 213 кв.м, в 200 м от метро.

Москва, ул Русаковская, д. 22

898 657.50 руб.

?

$ 1 086

€ 979

4 225 руб./м²


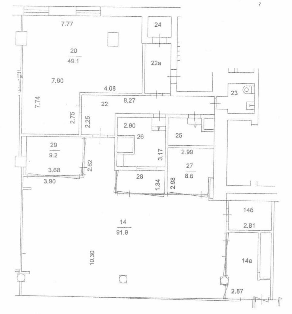
212.7 м²

1/13 этажей

Код объекта

128526

Предложение доступно для субагентов, авторизуйтесь

ПСН 213 кв.м, в 200 м от метро.

Код объекта: 128526.
Тип объекта: Помещение свободного назначения.
Площадь: 212.7 м².
Этаж / Этажность: 1 / 13.

Описание и характеристики

От Собственника! Помещение у метро Сокольники! 1 Линия! Высокий трафик! Под магазин, кафе, ресторан, салон красоты, аптека, медцентр, стоматология, фитнес и т.д.

Характеристики:
- 1 линия
- Отдельная входная группа
- Общая парковка
- Есть возможность разместить вывеску
- Погрузка/разгрузка: Запасной вход
- Доступ 24/7
- ХВС/ГВС
- Свой санузел
- Центральное отопление
- Приточно-вытяжная вентиляция
- Максимальная мощность 45 кВт
- Хороший ремонт
- Стрит ритейл
- Высота потолков 3 м
- С окнами
- Возможность перепланировки
- Видеонаблюдение
- Коммунальные услуги оплачиваются отдельно
АРР2

По всем вопросам можете обращаться к представителю собственника: Рафис З (716)

Перейти в карточку объекта в CRM: 128526.

Наиля

+7 927 030-01-60

или оставьте ваш номер, и я перезвоню в течение 30 минут

Отправляя заявку вы соглашаетесь на обработку персональных данных

898 657.50 руб.

?

$ 11 006

€ 9 484

4 225 руб./м²


212.7 м²

1/13 этажей

Код объекта

128526

Предложение доступно для субагентов, авторизуйтесь

Наиля

+7 927 030-01-60

или оставьте ваш номер, и я перезвоню в течение 30 минут

Отправляя заявку вы соглашаетесь на обработку персональных данных

Похожие объявления

Посмотреть все похожие объявления
1/5
Код объекта: 204341.
Тип объекта: Помещение свободного назначения.
Площадь: 400 м².
Этаж / Этажность: 1 / 2.
1/13
Код объекта: 254566.
Тип объекта: Помещение свободного назначения.
Площадь: 1090 м².
Этаж / Этажность: 1 / 22.
1/52
Код объекта: 255453.
Тип объекта: Помещение свободного назначения.
Площадь: 1000 м².
Этаж / Этажность: 2 / 22.
1/15
Код объекта: 259216.
Тип объекта: Помещение свободного назначения.
Площадь: 860 м².
Этаж / Этажность: 2 / 4.
1/7
Код объекта: 27820.
Тип объекта: Помещение свободного назначения.
Площадь: 1400 м².
Этаж / Этажность: 1 / 2.
1/19
Код объекта: 230013.
Тип объекта: Помещение свободного назначения.
Площадь: 197 м².
Этаж / Этажность: 1 / 4.
1/20
Код объекта: 200008.
Тип объекта: Помещение свободного назначения.
Площадь: 150 м².
Этаж / Этажность: -1 / 2.
1/6
Код объекта: 224956.
Тип объекта: Помещение свободного назначения.
Площадь: 177 м².
Этаж / Этажность: -1 / 2.
1/7
Код объекта: 43589.
Тип объекта: Помещение свободного назначения.
Площадь: 275 м².
Этаж / Этажность: 1 / 3.
1/23
Код объекта: 224795.
Тип объекта: Помещение свободного назначения.
Площадь: 150 м².
Этаж / Этажность: -1 / 17.
1/9
Код объекта: 20247.
Тип объекта: Торговое помещение.
Площадь: 110 м².
Этаж / Этажность: 1 / 1.
1/1
Код объекта: 326105.
Тип объекта: .

Не хочу искать, перезвоните мне!

Оставьте номер телефона, наш специалист свяжется с вами и поможет с подбором недвижимости!