Аренда торговой площади

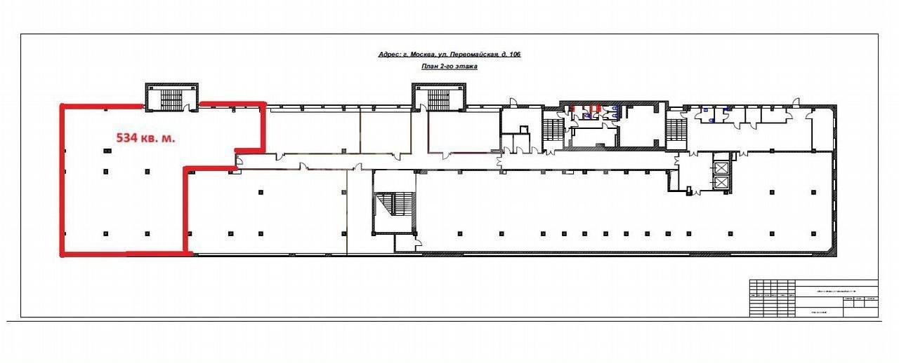
Москва, ул Первомайская, д. 106

881 100 руб.

?

$ 1 086

€ 979

1 650 руб./м²


534 м²

2/2 этажей

Код объекта

127564

Предложение доступно для субагентов, авторизуйтесь

Аренда торговой площади

Код объекта: 127564.
Тип объекта: Торговое помещение.
Площадь: 534 м².
Этаж / Этажность: 2 / 2.

Описание и характеристики

От собственника! Без комиссии!

Характеристики:
- 1 линия
- Общая входная группа
- Общая парковка
- Есть возможность разместить вывеску
- Доступ 24/7
- ХВС/ГВС
- Свой санузел
- Центральное отопление
- Приточно-вытяжная вентиляция
- Есть кондиционер
- Максимальная мощность 70 кВт
- Хороший ремонт
- Торговый/офисный центр
- Имеется запасной выход
- Высота потолков 3.5 м
- С окнами
- Возможность перепланировки
- Видеонаблюдение
- Коммунальные услуги оплачиваются отдельно

Дополнительная информация:
Предлагается в аренду торговая площадь.
- 2-й этаж
- Свободная планировка
- электрическая мощность 70кВт с возможностью увеличения
- Общая входная группа с центральной улицы Первомайская. Так же имеются два входа со двора .
- Два грузовых лифта

На первом этаже торговая сеть " Мироторг "
Пешая доступность до м. Первомайская.
Высокий пешеходный и автомобильный трафик вдоль здания.
Arr9

По всем вопросам можете обращаться к представителю собственника: Андрей Давыдов (279)

Перейти в карточку объекта в CRM: 127564.

Наиля

+7 927 030-01-60

или оставьте ваш номер, и я перезвоню в течение 30 минут

Отправляя заявку вы соглашаетесь на обработку персональных данных

881 100 руб.

?

$ 10 811

€ 9 213

1 650 руб./м²


534 м²

2/2 этажей

Код объекта

127564

Предложение доступно для субагентов, авторизуйтесь

Наиля

+7 927 030-01-60

или оставьте ваш номер, и я перезвоню в течение 30 минут

Отправляя заявку вы соглашаетесь на обработку персональных данных

Похожие объявления

Посмотреть все похожие объявления
1/15
Код объекта: 238572.
Тип объекта: Торговое помещение.
Площадь: 835 м².
Этаж / Этажность: 3 / 3.
1/11
Код объекта: 224066.
Тип объекта: Торговое помещение.
Площадь: 600 м².
Этаж / Этажность: 1 / 3.
1/18
Код объекта: 278860.
Тип объекта: Торговое помещение.
Площадь: 1000 м².
Этаж / Этажность: -1 / 9.
1/5
Код объекта: 253618.
Тип объекта: Торговое помещение.
Площадь: 997.5 м².
Этаж / Этажность: 1 / 1.
1/2
Код объекта: 204985.
Тип объекта: Торговое помещение.
Площадь: 1500 м².
Этаж / Этажность: 3 / 7.
1/6
Код объекта: 200717.
Тип объекта: Торговое помещение.
Площадь: 500 м².
Этаж / Этажность: 2 / 4.
1/8
Код объекта: 222059.
Тип объекта: Торговое помещение.
Площадь: 509 м².
Этаж / Этажность: 1 / 5.
1/4
Код объекта: 180946.
Тип объекта: Торговое помещение.
Площадь: 390.1 м².
Этаж / Этажность: 1 / 5.
1/8
Код объекта: 268508.
Тип объекта: Торговое помещение.
Площадь: 560 м².
Этаж / Этажность: 2 / 4.
1/5
Код объекта: 263087.
Тип объекта: Торговое помещение.
Площадь: 460 м².
Этаж / Этажность: 2 / 2.
1/9
Код объекта: 20247.
Тип объекта: Торговое помещение.
Площадь: 110 м².
Этаж / Этажность: 1 / 1.
1/1
Код объекта: 326105.
Тип объекта: .

Не хочу искать, перезвоните мне!

Оставьте номер телефона, наш специалист свяжется с вами и поможет с подбором недвижимости!