Сдам торговое помещение, 72 м²

Великий Новгород, пр-кт Мира, д. 9

50 000 руб.

?

$ 1 086

€ 979

694 руб./м²


72 м²

1/5 этажей

Код объекта

134000

Предложение доступно для субагентов, авторизуйтесь

Сдам Торговое помещение, 72 м²

Код объекта: 134000.
Тип объекта: Торговое помещение.
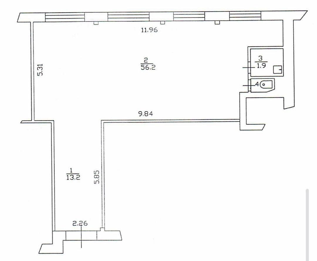
Площадь: 72 м².
Этаж / Этажность: 1 / 5.

Описание и характеристики

АРЕНДА ОТ СОБСТВЕННИКА.
БЕЗ КОМИССИИ ДЛЯ АРЕНДАТОРА.
---------------------------------------------------------------------------------

Предлагается в аренду помещение свободного назначения, общей площадью 72 кв.м., расположенное по адресу: г. Великий Новгород, ул. Мира д.9

Отдельными преимуществами помещения являются:
- отдельный вход;
- первая линия;
- высокий пешеходный и автомобильный трафик;
- возможность размещения вывески на фасаде;
- наличие зоны парковки перед помещением;
- электричество 12,5 кВт, 3 фазы;
- охранная и пожарная сигнализация;
- холодное и горячее водоснабжение, центральное отопление;
- санузел.
Рядом находятся такие арендаторы, как Озон, Слетать.ру, ЦветНовТорг, Вайлдберрис, Ветмастер, Канцтовары, Ателье, салоны красоты.

Стоимость аренды составляет 50 000 рублей + КУ

"Агентство регионального развития"
Вся коммерческая недвижимость Великого Новгорода. От собственника, без комиссии.

Перейти в карточку объекта в CRM: 134000.

АРР Великий Новгород

+7 921 730-92-01

или оставьте ваш номер, и я перезвоню в течение 30 минут

Отправляя заявку вы соглашаетесь на обработку персональных данных

50 000 руб.

?

$ 650

€ 555

694 руб./м²


72 м²

1/5 этажей

Код объекта

134000

Предложение доступно для субагентов, авторизуйтесь

АРР Великий Новгород

+7 921 730-92-01

или оставьте ваш номер, и я перезвоню в течение 30 минут

Отправляя заявку вы соглашаетесь на обработку персональных данных

Похожие объявления

Посмотреть все похожие объявления
1/10
Код объекта: 206015.
Тип объекта: Торговое помещение.
Площадь: 185 м².
Этаж / Этажность: -1 / 5.
1/6
Код объекта: 200767.
Тип объекта: Торговое помещение.
Площадь: 130 м².
Этаж / Этажность: -1 / 4.
1/13
Код объекта: 250789.
Тип объекта: Торговое помещение.
Площадь: 120 м².
Этаж / Этажность: -1 / 2.
1/9
Код объекта: 209506.
Тип объекта: Торговое помещение.
Площадь: 60 м².
Этаж / Этажность: 1 / 7.
1/13
Код объекта: 29938.
Тип объекта: Торговое помещение.
Площадь: 100 м².
Этаж / Этажность: 2 / 2.
1/5
Код объекта: 212238.
Тип объекта: Торговое помещение.
Площадь: 60 м².
Этаж / Этажность: 1 / 4.
1/9
Код объекта: 209506.
Тип объекта: Торговое помещение.
Площадь: 60 м².
Этаж / Этажность: 1 / 7.
1/2
Код объекта: 258498.
Тип объекта: Торговое помещение.
Площадь: 75 м².
Этаж / Этажность: 2 / 2.
1/6
Код объекта: 260530.
Тип объекта: Торговое помещение.
Площадь: 65 м².
Этаж / Этажность: -1 / 4.
1/24
Код объекта: 267862.
Тип объекта: Торговое помещение.
Площадь: 74.7 м².
Этаж / Этажность: 1 / 5.

Не хочу искать, перезвоните мне!

Оставьте номер телефона, наш специалист свяжется с вами и поможет с подбором недвижимости!