Отдельно стоящее здание, 1 453 м²

Саратов, Московское шоссе, д. 8А

726 500 руб.

?

$ 1 086

€ 979

500 руб./м²


1453 м²

1/2 этажей

Код объекта

92538

Предложение доступно для субагентов, авторизуйтесь

Отдельно стоящее здание, 1 453 м²

Код объекта: 92538.
Тип объекта: Отдельно стоящее здание.
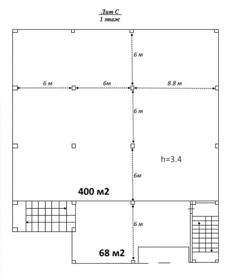
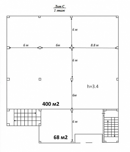
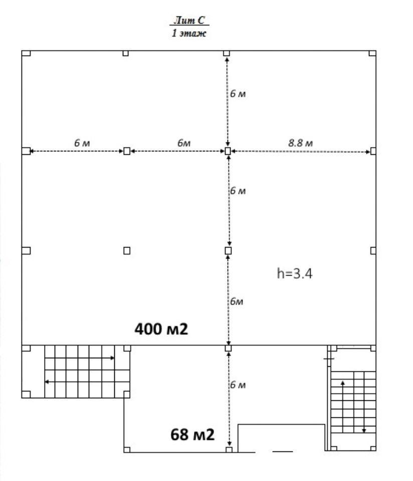
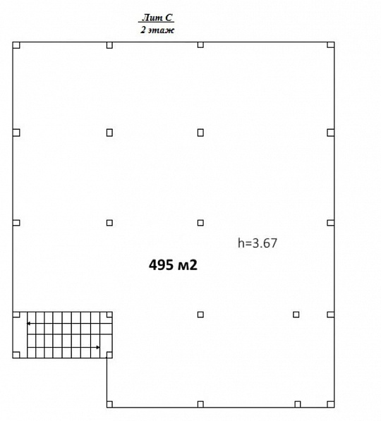
Площадь: 1453 м².
Этаж / Этажность: 1 / 2.

Описание и характеристики

Внимание! Без Комиссии для Покупателя!

СОБСТВЕННИК ГОТОВ СДЕЛАТЬ РЕМОНТ ПОД АРЕНДАТОРА (-ОВ).

Сдаётся отдельно стоящее здание без ремонта.
Назначение: Торговое и офисное.
Общая площадь: 1500 м2.

Московское шоссе, ПЕРВАЯ линия от дороги с хорошим автомобильным трафиком. Здание отлично просматривается со всех сторон проезжей части.

Характеристики здания:

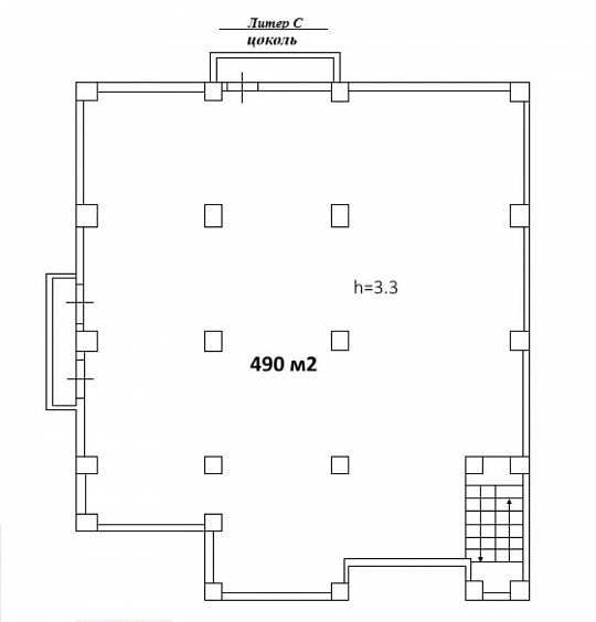
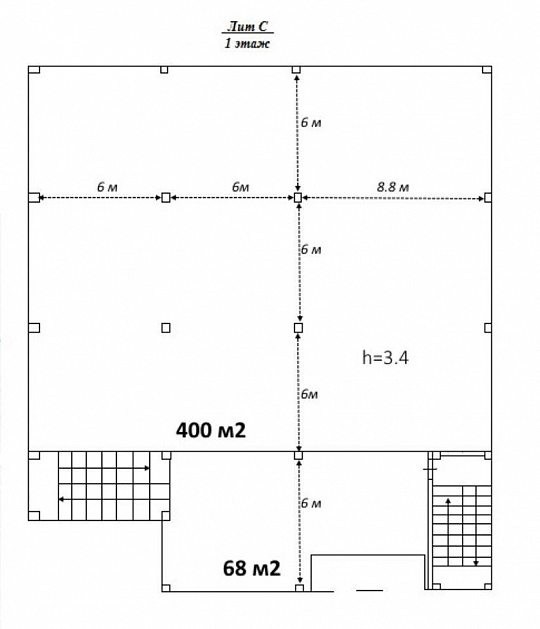
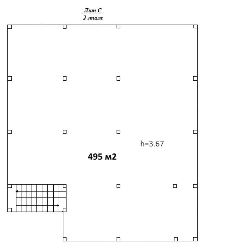
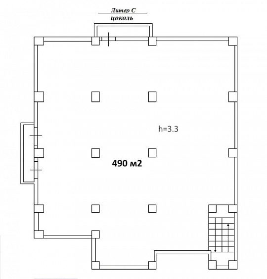
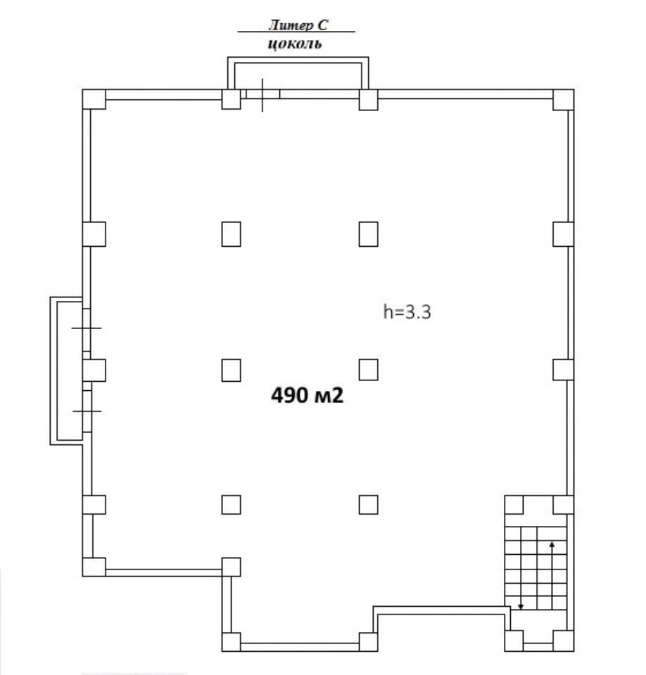
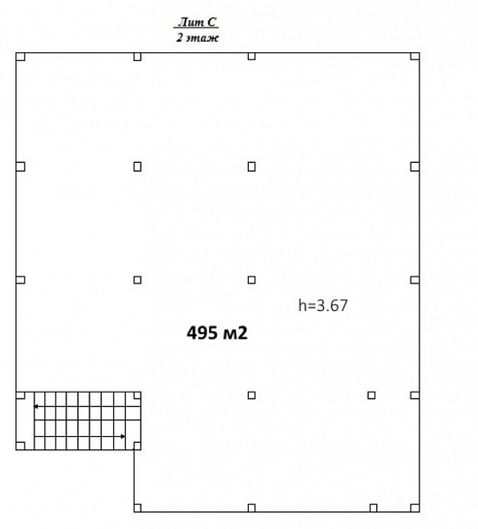
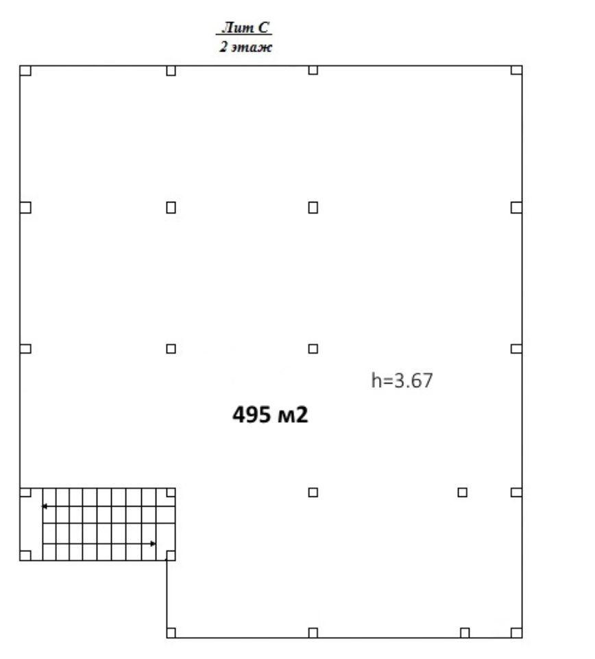
- Арендуемая площадь: от 468 - первый этаж, 495 - второй этаж, 490 - цокольный этаж. Всё здание - 1453 кв.м..
- Высота потолка: 3.3 м (цоколь), 3.4 м (1 этаж), 3.67 (2 этаж).
- Вертикальные коммуникации здания: лестницы.
- Системы отопления, вентиляции и кондиционирования: собственная котельная.
- Мощность энергоснабжения: 15 кВт – 3 фазы с возможностью увеличения до 100 кВт.
- Парковка: не менее 15 м/м.
- Возможность размещения наружной рекламы на фасаде здания.

Арендная ставка: в зависимости от этажа и метража, от 300 руб/кв.м.

Земельный участок: 11 соток.
Разрешенное использование (ВРИ): Для размещения комплекса обслуживания автомобилей, включая объекты торгово-бытового обслуживания населения.

Дмитрий Т..

Перейти в карточку объекта в CRM: 92538.

Агентство Регионального Развития

+7 900 312-59-99

или оставьте ваш номер, и я перезвоню в течение 30 минут

Отправляя заявку вы соглашаетесь на обработку персональных данных

726 500 руб.

?

$ 9 379

€ 8 086

500 руб./м²


1453 м²

1/2 этажей

Код объекта

92538

Предложение доступно для субагентов, авторизуйтесь

Агентство Регионального Развития

+7 900 312-59-99

или оставьте ваш номер, и я перезвоню в течение 30 минут

Отправляя заявку вы соглашаетесь на обработку персональных данных

Похожие объявления

Посмотреть все похожие объявления
1/26
Код объекта: 255488.
Тип объекта: Отдельно стоящее здание.
Площадь: 910 м².
Этаж / Этажность: 1 / 2.
1/9
Код объекта: 275417.
Тип объекта: Отдельно стоящее здание.
Площадь: 298 м².
Этаж / Этажность: 1 / 1.
1/20
Код объекта: 253402.
Тип объекта: Отдельно стоящее здание.
Площадь: 590 м².
Этаж / Этажность: 1 / 2.
1/12
Код объекта: 315950.
Тип объекта: Отдельно стоящее здание.
Площадь: 445 м².
Этаж / Этажность: 1 / 2.
1/12
Код объекта: 314204.
Тип объекта: Отдельно стоящее здание.
Площадь: 490 м².
Этаж / Этажность: 2 / 2.
1/14
Код объекта: 258415.
Тип объекта: Отдельно стоящее здание.
Площадь: 1200 м².
Этаж / Этажность: 1 / 2.
1/12
Код объекта: 280758.
Тип объекта: Отдельно стоящее здание.
Площадь: 1113.7 м².
Этаж / Этажность: 1 / 2.
1/7
Код объекта: 279182.
Тип объекта: Отдельно стоящее здание.
Площадь: 1400 м².
Этаж / Этажность: 1 / 1.
1/42
Код объекта: 305923.
Тип объекта: Отдельно стоящее здание.
Площадь: 1100 м².
Этаж / Этажность: 1 / 3.
1/16
Код объекта: 278801.
Тип объекта: Отдельно стоящее здание.
Площадь: 1500 м².
Этаж / Этажность: 1 / 1.
1/9
Код объекта: 20247.
Тип объекта: Торговое помещение.
Площадь: 110 м².
Этаж / Этажность: 1 / 1.
1/1
Код объекта: 326105.
Тип объекта: .

Не хочу искать, перезвоните мне!

Оставьте номер телефона, наш специалист свяжется с вами и поможет с подбором недвижимости!