Сдаются помещения свободного назначения 22,6 м²

Ижевск, ул Клубная, д. 67а

19 000 руб.

?

$ 1 086

€ 979

841 руб./м²


22.6 м²

2/2 этажей

Код объекта

100933

Предложение доступно для субагентов, авторизуйтесь

Сдаются помещения свободного назначения 22,6 м²

Код объекта: 100933.
Тип объекта: Помещение свободного назначения.
Площадь: 22.6 м².
Этаж / Этажность: 2 / 2.

Описание и характеристики

От собственника! Без комиссии!

Сдаются в аренду помещения в ТЦ «Парма» в спальном районе с развитой инфраструктурой, рядом с центром города:

На «0» этаже:
14,6 кв.м – 12000 р/ месяц
20 кв.м. – 16000 р/ месяц
21,8 кв.м – 17000 р/ месяц
23 кв.м. – 19000 р/ месяц
35,7 кв.м. – 25000 р/месяц (с отдельным входом и санузлом)

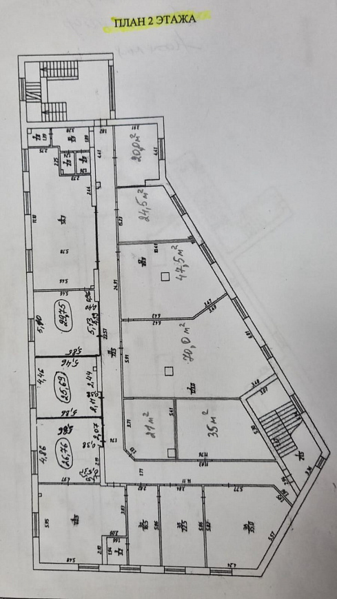
На 2 этаже:
16,5 кв.м. – 16000 р/месяц
22,5 кв.м. – 18000 р/месяц
25,69 кв.м. – 22000 р/месяц (с водой)
35 кв.м. – 27000 р/ месяц
40 кв.м. – 32000 р/ месяц
90 кв.м. – 70000 р/месяц
123 кв.м. – 86000 р/ месяц

Для вас:
- доступ с 08.30 до 20.00 ежедневно
- высокие потолки 3м
- пластиковые окна
- санузел на этаже
- уборка 1 раз в день
- активный автомобильный и пешеходный трафик
- большая парковка

Подойдет под любой бизнес, торговлю, услуги, офис.
Можно взять в аренду любые площади, какие вам необходимы, от 14,6 кв.м. до 650 кв.м. (при аренде всего этажа, а это 650 кв.м.  450 р/ кв.м.)

По всем вопросам можете обращаться к представителю собственника: Резеда

Перейти в карточку объекта в CRM: 100933.

Миляуша

+7 937 008-56-34

или оставьте ваш номер, и я перезвоню в течение 30 минут

Отправляя заявку вы соглашаетесь на обработку персональных данных

19 000 руб.

?

$ 235

€ 202

841 руб./м²


22.6 м²

2/2 этажей

Код объекта

100933

Предложение доступно для субагентов, авторизуйтесь

Миляуша

+7 937 008-56-34

или оставьте ваш номер, и я перезвоню в течение 30 минут

Отправляя заявку вы соглашаетесь на обработку персональных данных

Похожие объявления

Посмотреть все похожие объявления
1/4
Код объекта: 207434.
Тип объекта: Помещение свободного назначения.
Площадь: 40 м².
Этаж / Этажность: 2 / 2.
1/9
Код объекта: 242580.
Тип объекта: Помещение свободного назначения.
Площадь: 30 м².
Этаж / Этажность: 1 / 1.
1/6
Код объекта: 197635.
Тип объекта: Помещение свободного назначения.
Площадь: 23 м².
Этаж / Этажность: 1 / 2.
1/8
Код объекта: 242897.
Тип объекта: Помещение свободного назначения.
Площадь: 45.1 м².
Этаж / Этажность: 2 / 2.
1/8
Код объекта: 287583.
Тип объекта: Помещение свободного назначения.
Площадь: 15 м².
Этаж / Этажность: 1 / 9.
1/5
Код объекта: 207405.
Тип объекта: Помещение свободного назначения.
Площадь: 25 м².
Этаж / Этажность: 2 / 2.
1/21
Код объекта: 225134.
Тип объекта: Помещение свободного назначения.
Площадь: 25 м².
Этаж / Этажность: 2 / 2.
1/6
Код объекта: 197635.
Тип объекта: Помещение свободного назначения.
Площадь: 23 м².
Этаж / Этажность: 1 / 2.
1/9
Код объекта: 268446.
Тип объекта: Помещение свободного назначения.
Площадь: 25 м².
Этаж / Этажность: 1 / 1.
1/8
Код объекта: 294047.
Тип объекта: Помещение свободного назначения.
Площадь: 20 м².
Этаж / Этажность: 1 / 2.
1/9
Код объекта: 20247.
Тип объекта: Торговое помещение.
Площадь: 110 м².
Этаж / Этажность: 1 / 1.
1/1
Код объекта: 326105.
Тип объекта: .

Не хочу искать, перезвоните мне!

Оставьте номер телефона, наш специалист свяжется с вами и поможет с подбором недвижимости!