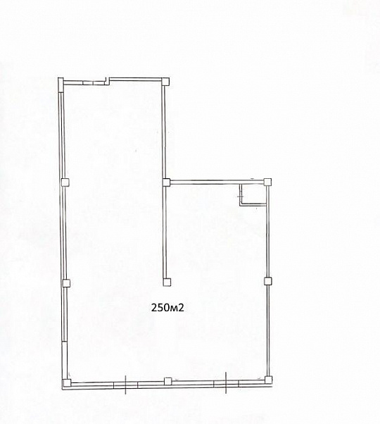
Сдам торговое помещение, 250 м²

Новороссийск, ул Шоссейная, д. 128

375 000 руб.

?

$ 1 086

€ 979

1 500 руб./м²


250 м²

1/2 этажей

Код объекта

130380

Предложение доступно для субагентов, авторизуйтесь

Сдам Торговое помещение, 250 м²

Код объекта: 130380.
Тип объекта: Торговое помещение.
Площадь: 250 м².
Этаж / Этажность: 1 / 2.

Описание и характеристики

Сдам нежилое помещение на 1 линии ул.Шоссейная от 100м2
От собственника. Без комиссии.
- Первая линия
- Первый этаж
- Витражное остекление, парковка
- Высокий автомобильный трафик
- Близость к остановкам общественного транспорта
- Запасный выход, место под разгрузку
- Помещение свободной планировки
- Санузел, центральная вода
- Возможно увеличение площади до 400м2
Помещение отлично подойдет под торговлю и выставочный зал, медицинские услуги, сферу развлечений и другое.

Звоните
Михаил - ваш персональный менеджер
"Агентство регионального развития" Коммерческая недвижимость Новороссийска.
От Собственника. Без комиссии
Подписывайтесь на наш профиль, чтобы узнавать о новых локациях первыми!

Перейти в карточку объекта в CRM: 130380.

АРР Новороссийск

+7 988 770-91-00

или оставьте ваш номер, и я перезвоню в течение 30 минут

Отправляя заявку вы соглашаетесь на обработку персональных данных

375 000 руб.

?

$ 4 899

€ 4 124

1 500 руб./м²


250 м²

1/2 этажей

Код объекта

130380

Предложение доступно для субагентов, авторизуйтесь

АРР Новороссийск

+7 988 770-91-00

или оставьте ваш номер, и я перезвоню в течение 30 минут

Отправляя заявку вы соглашаетесь на обработку персональных данных

Похожие объявления

Посмотреть все похожие объявления
1/4
Код объекта: 242894.
Тип объекта: Торговое помещение.
Площадь: 324 м².
Этаж / Этажность: 1 / 2.
1/16
Код объекта: 261028.
Тип объекта: Торговое помещение.
Площадь: 715 м².
Этаж / Этажность: 2 / 2.
1/8
Код объекта: 268508.
Тип объекта: Торговое помещение.
Площадь: 560 м².
Этаж / Этажность: 2 / 4.
1/16
Код объекта: 220909.
Тип объекта: Торговое помещение.
Площадь: 290 м².
Этаж / Этажность: -1 / 8.
1/15
Код объекта: 224350.
Тип объекта: Торговое помещение.
Площадь: 370 м².
Этаж / Этажность: 1 / 2.
1/10
Код объекта: 206015.
Тип объекта: Торговое помещение.
Площадь: 185 м².
Этаж / Этажность: -1 / 5.
1/4
Код объекта: 242894.
Тип объекта: Торговое помещение.
Площадь: 324 м².
Этаж / Этажность: 1 / 2.
1/5
Код объекта: 228887.
Тип объекта: Торговое помещение.
Площадь: 200 м².
Этаж / Этажность: 2 / 2.
1/3
Код объекта: 255982.
Тип объекта: Торговое помещение.
Площадь: 300 м².
Этаж / Этажность: 1 / 9.
1/4
Код объекта: 256266.
Тип объекта: Торговое помещение.
Площадь: 200 м².
Этаж / Этажность: -1 / 5.
1/9
Код объекта: 20247.
Тип объекта: Торговое помещение.
Площадь: 110 м².
Этаж / Этажность: 1 / 1.
1/1
Код объекта: 326105.
Тип объекта: .

Не хочу искать, перезвоните мне!

Оставьте номер телефона, наш специалист свяжется с вами и поможет с подбором недвижимости!