Сдам торговое помещение, 50 м²

Москва, Ленинский пр-кт, д. 93

150 000 руб.

?

$ 1 086

€ 979

3 000 руб./м²


50 м²

1/8 этажей

Код объекта

134958

Предложение доступно для субагентов, авторизуйтесь

Сдам Торговое помещение, 50 м²

Код объекта: 134958.
Тип объекта: Торговое помещение.
Площадь: 50 м².
Этаж / Этажность: 1 / 8.

Описание и характеристики

Предлагается в аренду помещение свободного назначения на первой линии Ленинского проспекта
50м2
высокий пешеходный и автомобильный трафик
2 мин до метро Новаторская
Отлично просматривается с дороги, есть возможность повесить вывеску на фасаде
Витринные окна
мощность 15 кВт (можно увеличить)
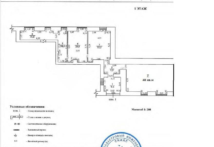
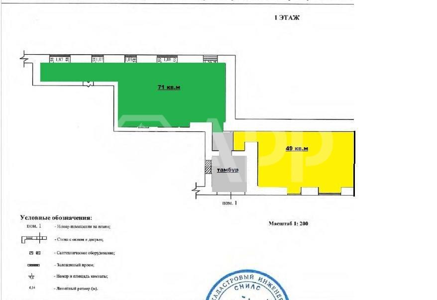
Можно снять площадь больше, в фото есть вариант разделения помещения на 2х арендаторов
Отлично подойдет под такие виды деятельности как:
- магазин
- шоу-рум
- салон красоты
- фитнес студия
- аптеки
- офис / представительство
и другие виды деятельности, кому необходим хороший трафик, престижное расположение и витринные окна

Звоните!
АРР1

По всем вопросам можете обращаться к представителю собственника: Роман Л (724)

Перейти в карточку объекта в CRM: 134958.

Наиля

+7 927 030-01-60

или оставьте ваш номер, и я перезвоню в течение 30 минут

Отправляя заявку вы соглашаетесь на обработку персональных данных

150 000 руб.

?

$ 2 003

€ 1 709

3 000 руб./м²


50 м²

1/8 этажей

Код объекта

134958

Предложение доступно для субагентов, авторизуйтесь

Наиля

+7 927 030-01-60

или оставьте ваш номер, и я перезвоню в течение 30 минут

Отправляя заявку вы соглашаетесь на обработку персональных данных

Похожие объявления

Посмотреть все похожие объявления
1/4
Код объекта: 240799.
Тип объекта: Торговое помещение.
Площадь: 22 м².
Этаж / Этажность: 1 / 1.
1/8
Код объекта: 233703.
Тип объекта: Торговое помещение.
Площадь: 335 м².
Этаж / Этажность: 1 / 1.
1/2
Код объекта: 258498.
Тип объекта: Торговое помещение.
Площадь: 75 м².
Этаж / Этажность: 2 / 2.
1/7
Код объекта: 260531.
Тип объекта: Торговое помещение.
Площадь: 119 м².
Этаж / Этажность: 1 / 12.
1/20
Код объекта: 263208.
Тип объекта: Торговое помещение.
Площадь: 229 м².
Этаж / Этажность: -1 / 5.
1/5
Код объекта: 240489.
Тип объекта: Торговое помещение.
Площадь: 44 м².
Этаж / Этажность: 1 / 1.
1/5
Код объекта: 212238.
Тип объекта: Торговое помещение.
Площадь: 60 м².
Этаж / Этажность: 1 / 4.
1/9
Код объекта: 209506.
Тип объекта: Торговое помещение.
Площадь: 60 м².
Этаж / Этажность: 1 / 7.
1/6
Код объекта: 260530.
Тип объекта: Торговое помещение.
Площадь: 65 м².
Этаж / Этажность: -1 / 4.
1/3
Код объекта: 240241.
Тип объекта: Торговое помещение.
Площадь: 60 м².
Этаж / Этажность: 1 / 2.

Не хочу искать, перезвоните мне!

Оставьте номер телефона, наш специалист свяжется с вами и поможет с подбором недвижимости!